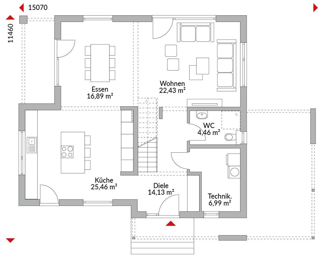
Eineinhalbgeschossiges Haus mit vier Zimmern, Ankleide, offener Küche, Bad, Gäste-WC, Technikraum, Diele sowie mit integriertem Carport mit Eingangsüberdachung und Terrassenüberdachung. Versetzte Pultdächer mit 25° Dachneigung, Kniestock 1,75 m und 1,424 m. Carport mit Flachdach.
*Abbildungen zeigen teilweise individuelle Zusatzausstattung.
Hausstandard Today
Vollständige Baubeschreibung und Materialspezifikation.

Grundrisse
Kompletter Plan aller Etagen mit Fläche

Sogar fremde Leute haben uns im Ort angesprochen, wie schön unser Haus ist. Klar macht einen das stolz.