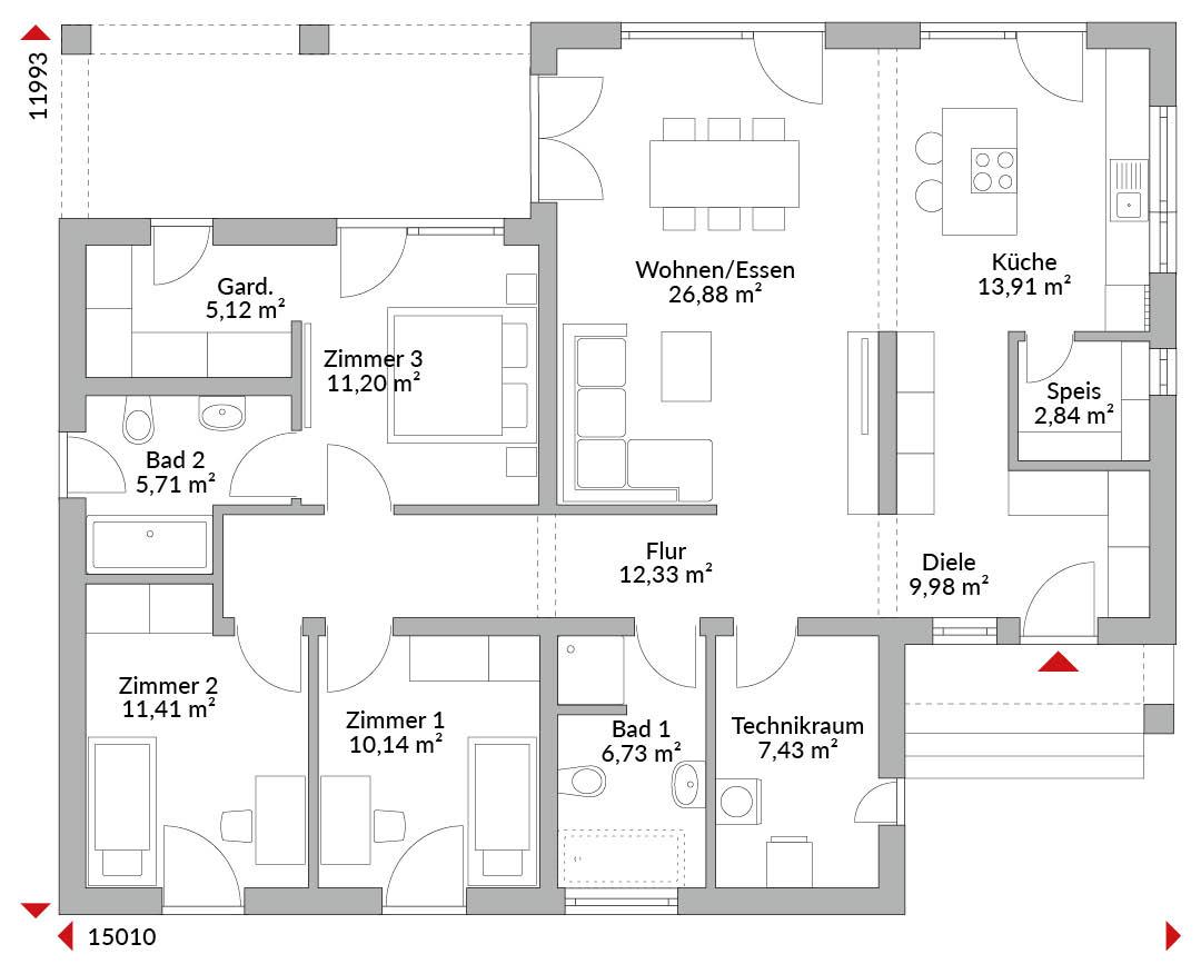
Winkelbungalow mit vier Zimmern, Ankleide, offener Küche, Speisekammer, zwei Bädern, Diele und Technikraum. Walmdach (inklusive Haustürüberdachung) mit 25° Dachneigung.
*Abbildungen zeigen teilweise individuelle Zusatzausstattung.
Hausstandard Today
Vollständige Baubeschreibung und Materialspezifikation.

Grundrisse
Kompletter Plan aller Etagen mit Fläche






Sogar fremde Leute haben uns im Ort angesprochen, wie schön unser Haus ist. Klar macht einen das stolz.