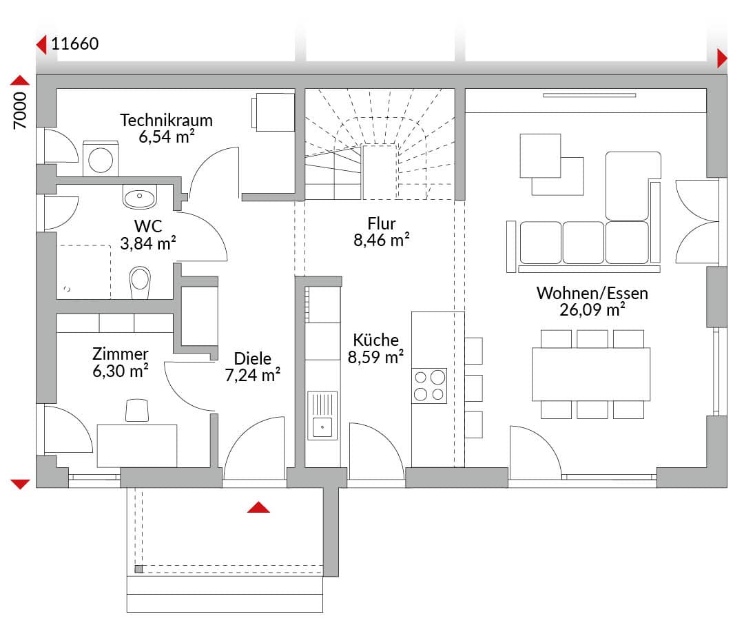
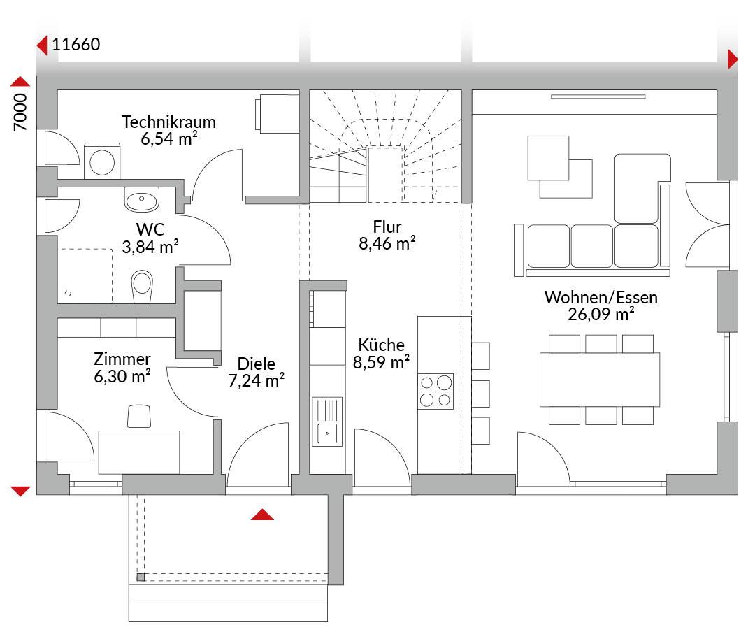
Doppelhaushälfte mit fünf Zimmern, Ankleide, Küche, Bad, Gäste-WC, Technikraum und Diele. Integrierte Flachdach-Eingangsüberdachung mit Seitenwand. Satteldach mit 25° Dachneigung, Kniestock 1,75 m und Flachdachgaube.
*Abbildungen zeigen teilweise individuelle Zusatzausstattung.
Hausstandard Today
Vollständige Baubeschreibung und Materialspezifikation.

Grundrisse
Kompletter Plan aller Etagen mit Fläche

Sogar fremde Leute haben uns im Ort angesprochen, wie schön unser Haus ist. Klar macht einen das stolz.