Das PARTNER PLUS 113W ist so aufgebaut, dass beide Wohnungen nahezu gleich viel Raum zur Verfügung haben. Das schafft eine schöne Balance, unabhängig davon, ob beide Einheiten innerhalb der Familie genutzt oder vermietet werden.
Der kompakte Baukörper mit Satteldach bleibt bewusst ruhig in seiner Erscheinung. Die klar gesetzten Fensterachsen und die zurückhaltende Fassadengliederung sorgen für ein stimmiges Gesamtbild. Zwei getrennte Eingänge und die außenliegende Treppe machen die Aufteilung direkt ablesbar.
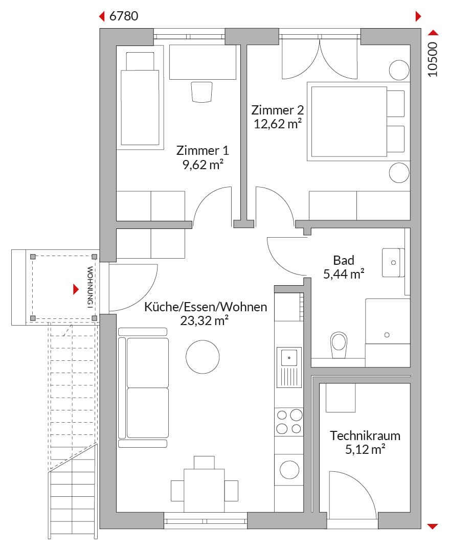
Im Erdgeschoss liegt eine großzügige Wohnung mit offenem Bereich für Küche, Essen und Wohnen. Ergänzt wird sie durch ein Zimmer, ein Bad und den Technikraum. Von hier aus öffnet sich die Wohnung direkt in den Garten.
Im Dachgeschoss setzt sich die Struktur fort. Die zweite Wohnung bietet ebenfalls einen klar gegliederten Wohn-/Essbereich, eine separate Küche, zwei Zimmer und ein eigenes Bad. Durch die Außentreppe bleibt die Einheit unabhängig erschlossen.
So eignet sich das PARTNER PLUS 113W für Wohnmodelle, bei denen Gleichwertigkeit gefragt ist, etwa für zwei Generationen, für zwei Parteien oder für die Kombination aus Wohnen und Vermieten.
Hausstandard Today
Vollständige Baubeschreibung und Materialspezifikation.

Grundrisse
Kompletter Plan aller Etagen mit Fläche

Sogar fremde Leute haben uns im Ort angesprochen, wie schön unser Haus ist. Klar macht einen das stolz.