Erleben Sie das DAN-WOOD Family 103 – ein modernes Einfamilienhaus, das Komfort und Eleganz vereint. Mit seiner zeitlosen Architektur und großen Fensterfronten bietet es eine lichtdurchflutete, einladende Atmosphäre. Das Erdgeschoss überzeugt durch einen offenen Wohnbereich und eine moderne, großzügige Küche, ideal für gemeinsame Familienmomente. Im Obergeschoss finden sich drei geräumige Schlafzimmer, die jedem Familienmitglied Privatsphäre bieten. Zusätzliche Annehmlichkeiten wie ein Gäste-WC und ein Hauswirtschaftsraum sorgen für höchsten Wohnkomfort.
*Abbildungen zeigen teilweise individuelle Zusatzausstattung.
Hausstandard Family
Vollständige Baubeschreibung und Materialspezifikation.

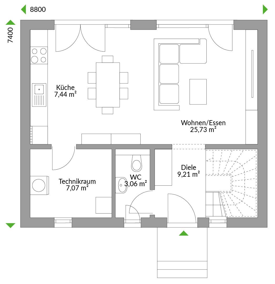
Grundrisse
Kompletter Plan aller Etagen mit Fläche





Mit unserem DAN-WOOD Family-Programm sparen Sie mehrfach: Dank des hohen Vorkonfigurationsgrad am Hauspreis, der klimafreundlichen Bauweise mit günstiger Finanzierung und moderner Haus- und Heiztechnik bei den Heizkosten. Wählen Sie Ihren Wunschhaustyp - ob Bungalow, eineinhalbgeschossiges Haus oder schöner Zweigeschosser.

Sogar fremde Leute haben uns im Ort angesprochen, wie schön unser Haus ist. Klar macht einen das stolz.