Das charmante Family 126 von Danwood ist ein echtes Familienidyll. Ein lichtdurchflutetes Zuhause mit weitläufigem Wohn-Essbereich als Mittelpunkt, angrenzender gemütlicher Küche, einem praktischen Gäste-WC und Technikraum im Erdgeschoss. Das Obergeschoss ist eine Ruheoase mit drei behaglichen Schlafzimmern und einem großzügigen Wannenbad plus Dusche. Hier findet jedes Familienmitglied seinen Platz. Liebevoll gestaltet, bietet es den idealen Rahmen für gemeinsame Familienmomente und individuelle Rückzugsorte. Ein Nest der Geborgenheit und des Glücks.
*Abbildungen zeigen teilweise individuelle Zusatzausstattung.
Hausstandard Family
Vollständige Baubeschreibung und Materialspezifikation.

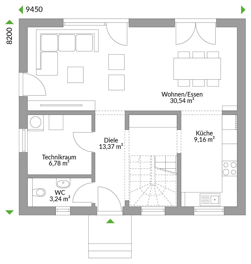
Grundrisse
Kompletter Plan aller Etagen mit Fläche





Mit unserem DAN-WOOD Family-Programm sparen Sie mehrfach: Dank des hohen Vorkonfigurationsgrad am Hauspreis, der klimafreundlichen Bauweise mit günstiger Finanzierung und moderner Haus- und Heiztechnik bei den Heizkosten. Wählen Sie Ihren Wunschhaustyp - ob Bungalow, eineinhalbgeschossiges Haus oder schöner Zweigeschosser.

Sogar fremde Leute haben uns im Ort angesprochen, wie schön unser Haus ist. Klar macht einen das stolz.