Das Family 142 überzeugt als elegantes, geräumiges Einfamilienhaus mit verschiedenen Grundrissvarianten, um unterschiedlichen Bedürfnissen und Stilen gerecht zu werden. In seiner Außenansicht modern designt mit Satteldach, großen Fenstern und einer Terrasse, die zum Verweilen einlädt.
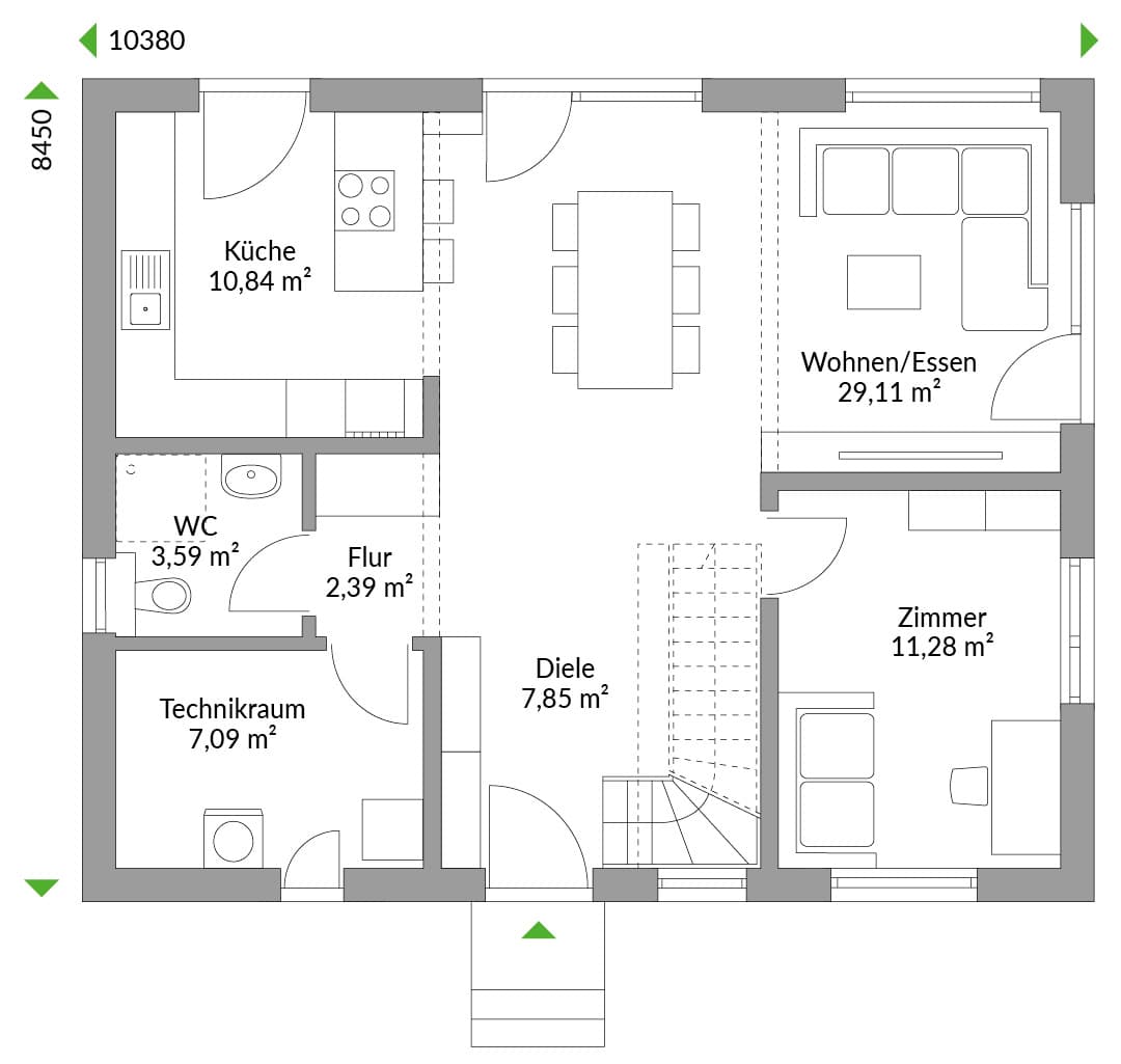
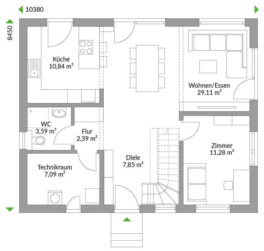
Die Grundrisse im Erdgeschoss variieren, bieten jedoch immer einen großzügigen Wohn- und Essbereich, der das Herzstück des Hauses darstellt, eine gut dimensionierte Küche, ein separates Gäste-WC und einen Technikraum im Erdgeschoss. Im Obergeschoss befinden sich gleich vier Schlafzimmer und ein großzügiges Wannenbad mit Dusche für private Momente für jedes Familienmitglied. Für die Eltern gibt es im Schlafzimmer ein besonderes Bonbon - eine begehbare Ankleide.
*Abbildungen zeigen teilweise individuelle Zusatzausstattung.
Hausstandard Family
Vollständige Baubeschreibung und Materialspezifikation.

Grundrisse
Kompletter Plan aller Etagen mit Fläche





Mit unserem DAN-WOOD Family-Programm sparen Sie mehrfach: Dank des hohen Vorkonfigurationsgrad am Hauspreis, der klimafreundlichen Bauweise mit günstiger Finanzierung und moderner Haus- und Heiztechnik bei den Heizkosten. Wählen Sie Ihren Wunschhaustyp - ob Bungalow, eineinhalbgeschossiges Haus oder schöner Zweigeschosser.

Sogar fremde Leute haben uns im Ort angesprochen, wie schön unser Haus ist. Klar macht einen das stolz.