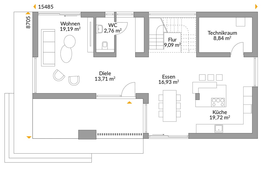
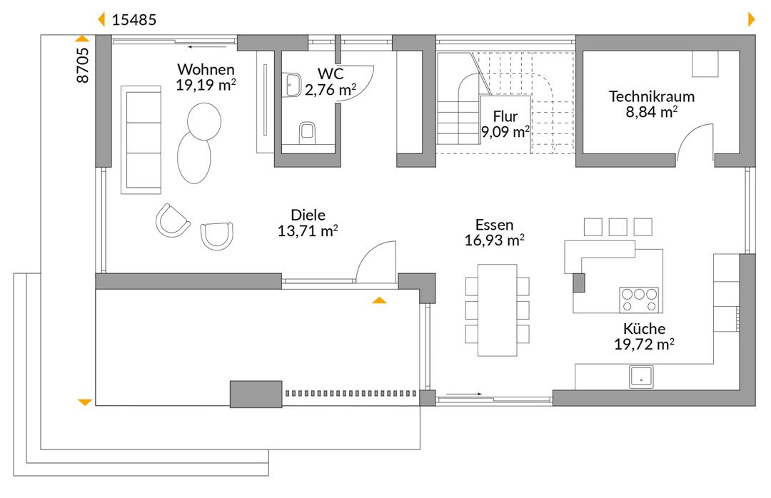
200 Quadratmeter – hier hat eine vierköpfige Familie viel Platz zum Leben. Weitläufig und mit schönen Sichtachsen präsentiert sich das Erdgeschoss des Modulhauses mit großer Küche, anliegendem Essplatz und einer abgeschirmten Lounge-Ecke. Vor gläserner Kulisse „schwebt“ die grazile Treppe. Im Obergeschoss genießen die Eltern ihren privaten Bereich mit Schlafzimmer, Ankleide und En-Suite-Bad. Zu den zwei Kinderzimmern gehört ein weiteres Bad. Der hohen Kniestock und die Öffnung der Räume bis unter den First sorgen für Platz und einen luftigen Eindruck. Der 33m2 große Balkon ist über den Flur zugänglich.
Der Zusatz „Wood“ im NEXT by Danwood-Hausprogramm kennzeichnet Modulhäuser, deren Rahmenkonstruktion vollständig aus Holz statt aus Stahl besteht.
*Abbildungen zeigen teilweise individuelle Zusatzausstattung.
Hausstandard NEXT
Vollständige Baubeschreibung und Materialspezifikation.

Grundrisse
Kompletter Plan aller Etagen mit Fläche





Das innovative Danwood-Modulbauprogramm bietet smarte schlüsselfertige Modulhäuser in moderner Architektur mit viel Glas, die komplett bis ins Detail im Werk vorgefertigt werden. Sie punkten mit kürzerer Lieferzeit und einer Aufbauzeit von drei Wochen. Ihr Alles-Inklusive-Konzept umfasst modernste Haustechnik, höchste Energieeffizienz und ausgesuchtes Innendesign.

Sogar fremde Leute haben uns im Ort angesprochen, wie schön unser Haus ist. Klar macht einen das stolz.