Eineinhalbgeschossiges Haus mit Eingangsüberdachung der höheren Haustür und zwei Zimmern im Obergeschoss. Hauptschlafzimmer mit großer Ankleide. Das erhöhte Erdgeschoss mit Eckverglasung und höheren Fenstern ist als offene Küche/ Wohnen/ Essen mit Schiebetüren zur Terrasse konzipiert. Gäste-WC mit Dusche, Wannenbad mit Dusche und Doppelwaschbecken, Technikraum und Diele, Flur, Satteldach mit breiter Traufe von 60 cm, 40° Dachneigung, Kniestock 1 m.
*Abbildungen zeigen teilweise individuelle Zusatzausstattung.
Hausstandard S-Linie
Vollständige Baubeschreibung und Materialspezifikation.

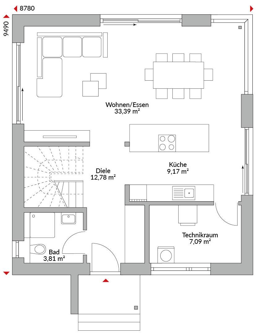
Grundrisse
Kompletter Plan aller Etagen mit Fläche
Willkommen bei der S-Linie von Danwood, der neuen Dimension des Wohlfühlens. Diese exklusive Serie hebt sich nicht nur durch ihr einmaliges architektonisches Design ab, sondern auch durch eine besondere funktionale Gestaltung, die jedem Wohnraum eine außergewöhnliche Qualität verleiht. Jedes Haus unserer S-Linie zeichnet sich durch eine Reihe von besonderen Merkmalen aus, die für ein luxuriöses Wohnerlebnis sorgen.

Sogar fremde Leute haben uns im Ort angesprochen, wie schön unser Haus ist. Klar macht einen das stolz.