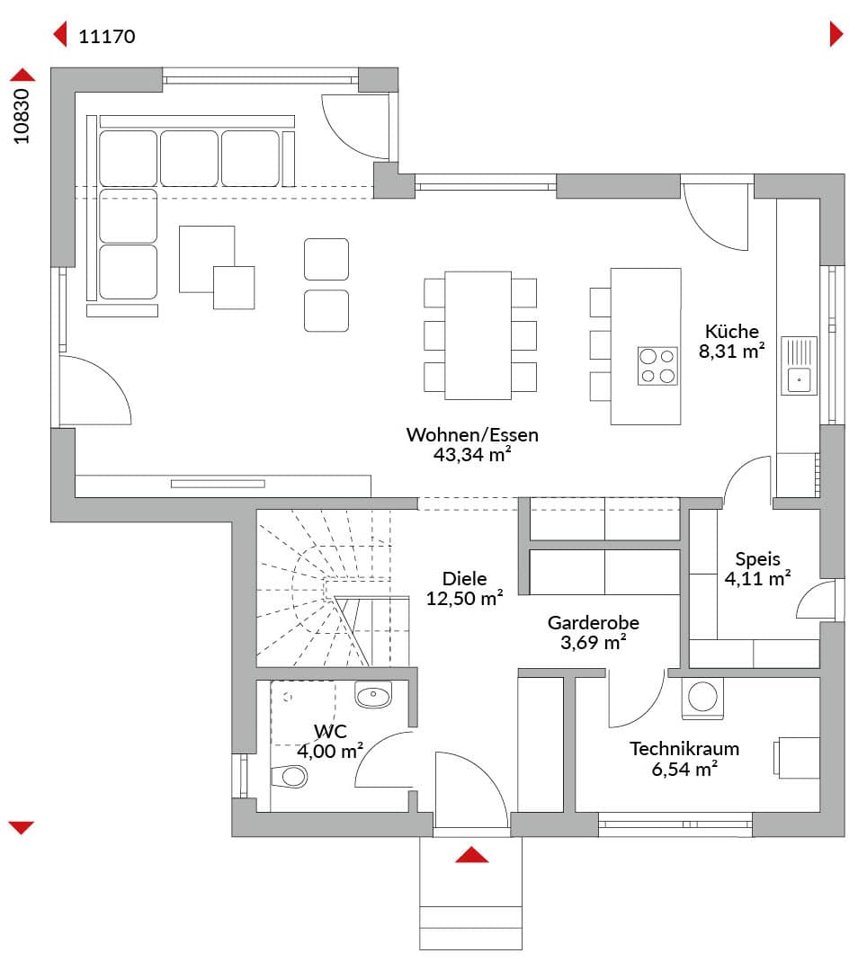
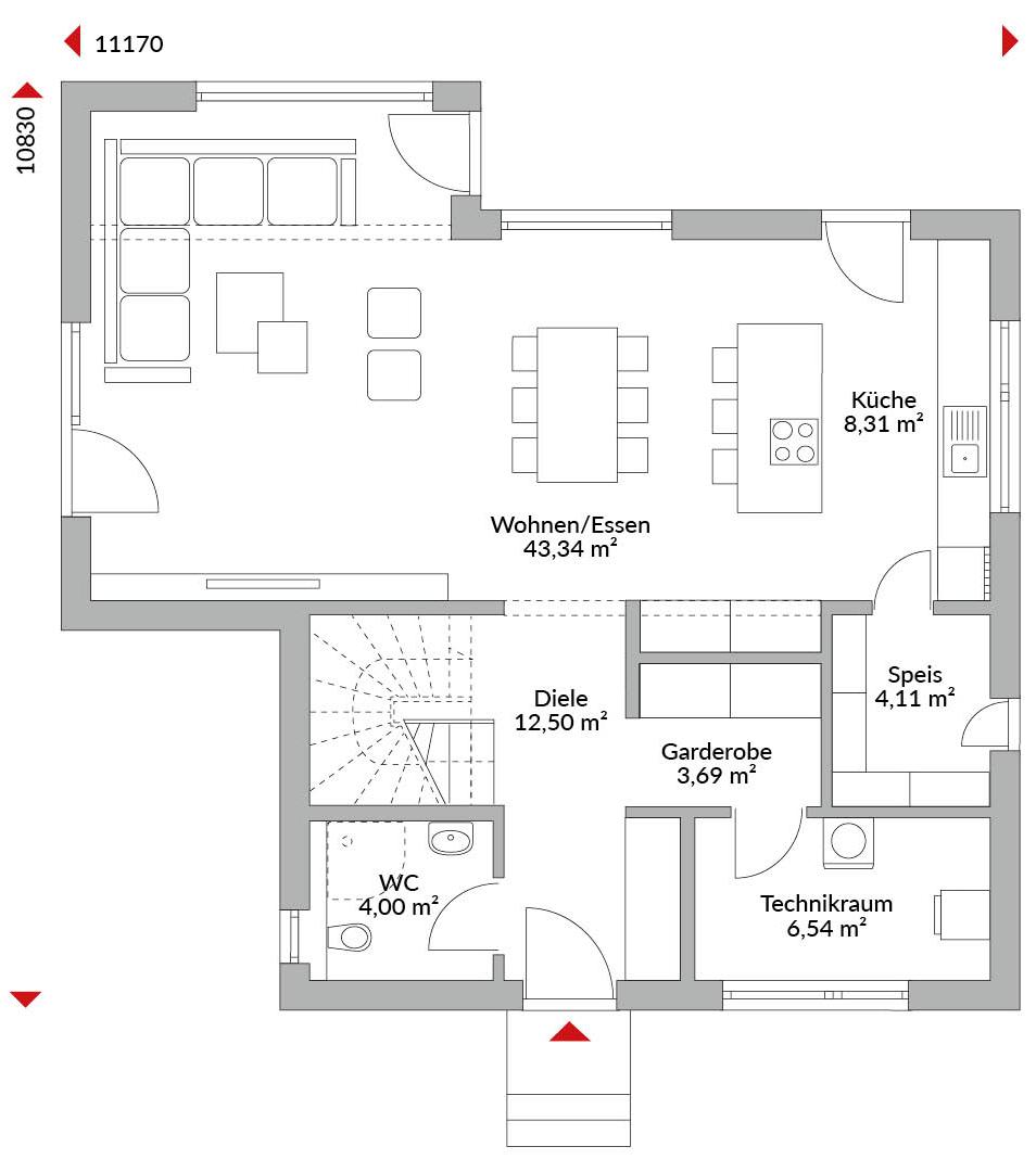
Eineinhalbgeschossiges Haus mit vier Zimmern, offener Küche, Speisekammer, Bad, Gäste-WC, Technikraum und Diele, Satteldach mit 30° Dachneigung, Kniestock 1,50 m.
*Abbildungen zeigen teilweise individuelle Zusatzausstattung.
Hausstandard Today
Vollständige Baubeschreibung und Materialspezifikation.

Grundrisse
Kompletter Plan aller Etagen mit Fläche

Sogar fremde Leute haben uns im Ort angesprochen, wie schön unser Haus ist. Klar macht einen das stolz.