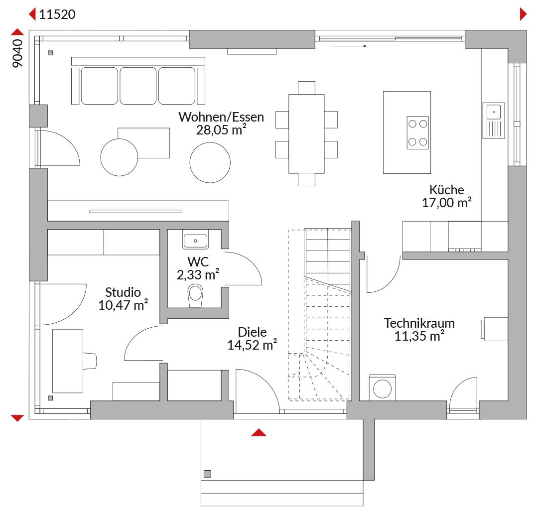
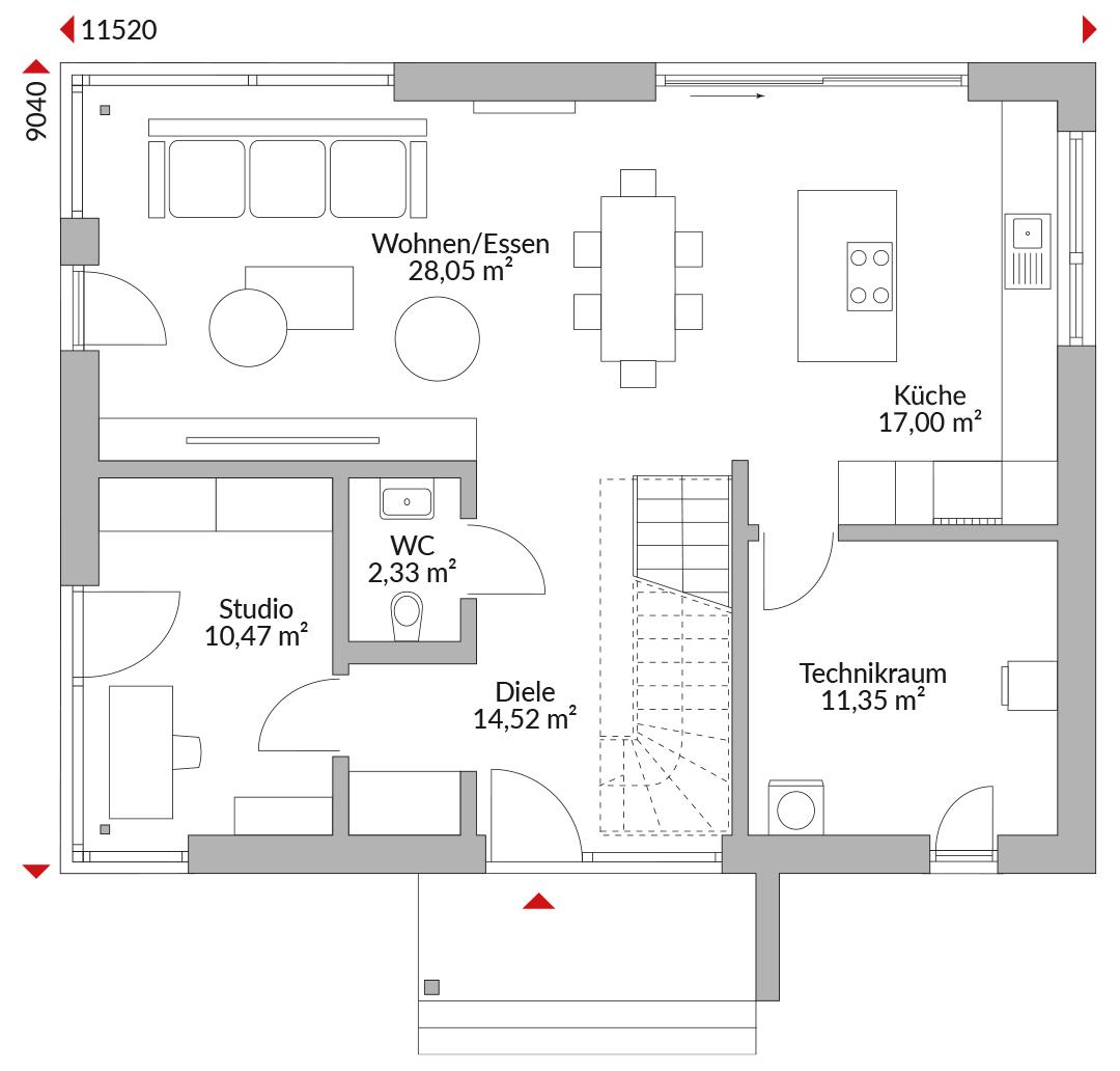
Eineinhalbgeschossiges Haus mit Eingangsüberdachung der höheren Haustür und drei Zimmern im Obergeschoss. Bodentiefe Verglasung im Erd- und Obergeschoss. Hauptschlafzimmer mit geräumiger Ankleide und Duschbad en Suite. Weiteres Wannenbad mit Dusche und Doppelwaschbecken im Obergeschoss. Das höhere Erdgeschoss mit verglastem Eckerker und erhöhter Verglasung ist als offene Küche/ Wohnen/ Essen mit Schiebetüren zur Terrasse konzipiert. Büro mit bodentiefer Eckverglasung, Gäste-WC, Technikraum und Diele mit Garderobe, Flur, Satteldach, 32° Dachneigung, Kniestock 2,00 m.
*Abbildungen zeigen teilweise individuelle Zusatzausstattung.
Hausstandard S-Linie
Vollständige Baubeschreibung und Materialspezifikation.

Grundrisse
Kompletter Plan aller Etagen mit Fläche
Willkommen bei der S-Linie von Danwood, der neuen Dimension des Wohlfühlens. Diese exklusive Serie hebt sich nicht nur durch ihr einmaliges architektonisches Design ab, sondern auch durch eine besondere funktionale Gestaltung, die jedem Wohnraum eine außergewöhnliche Qualität verleiht. Jedes Haus unserer S-Linie zeichnet sich durch eine Reihe von besonderen Merkmalen aus, die für ein luxuriöses Wohnerlebnis sorgen.

Sogar fremde Leute haben uns im Ort angesprochen, wie schön unser Haus ist. Klar macht einen das stolz.