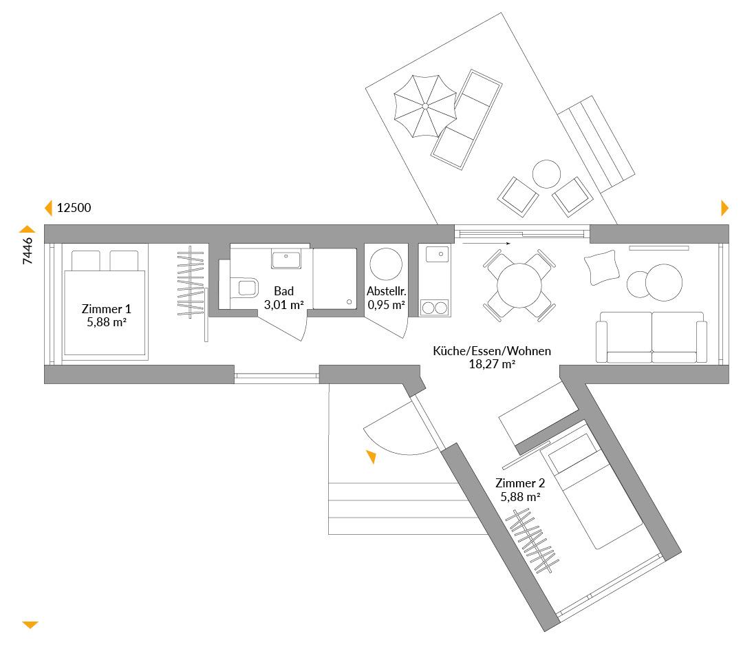
Wenn das Grundstück ein etwas breiteres Haus erlaubt – in diesem Fall reichlich sieben Meter – kann ein zusätzliches schmales S-Modul die Wohnsituation komfortabler gestalten. Ein kleines Zimmer und ein einladender Eingangsbereich werden durch das Andocken dieses Moduls im Vergleich zum elf Quadratmeter kleineren NEXT Holiday 23 S-1 gewonnen. Eine weitere Panorama-Glaswand lässt das Gefühl aufkommen, mitten in der blühenden Landschaft zu sitzen.
Hausstandard NEXT Holiday
Vollständige Baubeschreibung und Materialspezifikation.

Grundrisse
Kompletter Plan aller Etagen mit Fläche






Sogar fremde Leute haben uns im Ort angesprochen, wie schön unser Haus ist. Klar macht einen das stolz.