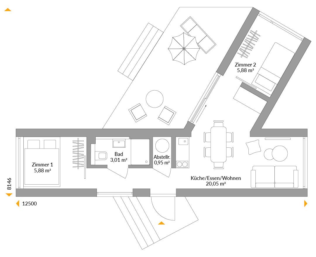
Schön, wenn das Ferienhaus Flügel bekommt. Denn da passt noch ein zweites Schlafzimmer hinein. Und ein zusätzlicher großer Schrank. Für vier Personen – oder maximal sogar sechs – braucht es ein bisschen mehr Stauraum. Und es gibt trotz der schmalen S-Module Platz für einen großen Tisch, an dem in geselliger Runde gegessen und gespielt werden kann. Das angedockte Modul sorgt außerdem für einen windgeschützten Terrassenplatz, der an warmen Tagen als Sommerzimmer eine feste Größe ist.
Hausstandard NEXT Holiday
Vollständige Baubeschreibung und Materialspezifikation.

Grundrisse
Kompletter Plan aller Etagen mit Fläche






Sogar fremde Leute haben uns im Ort angesprochen, wie schön unser Haus ist. Klar macht einen das stolz.