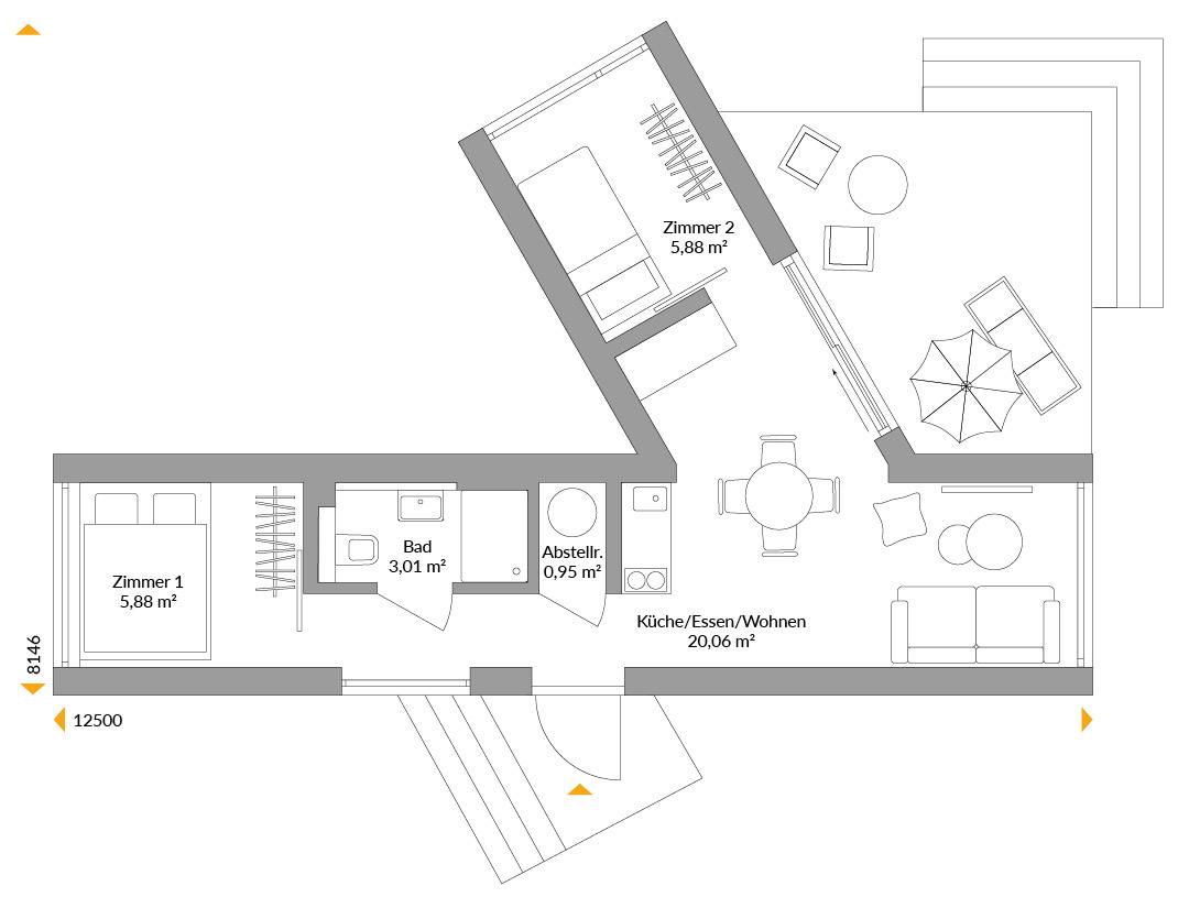
Als edles Ferienhaus präsentiert sich das knapp 36 Quadratmeter-Domizil in naturfarbenenr Lamellenverkleidung. Die großen Verglasungen bieten herrliche Aussicht in alle vier Himmlsrichtungen. Auch bei diesem Haus aus schmalen S-Modulen ist dank eines angedockten Flügels ein zweites Schlafzimmer vorhanden und im Übergang zwischen beiden Modulen Platz für den Familientreff. Die geschützte Terrasse bietet einen weiten Blick in die Landschaft.
Hausstandard NEXT Holiday
Vollständige Baubeschreibung und Materialspezifikation.

Grundrisse
Kompletter Plan aller Etagen mit Fläche






Sogar fremde Leute haben uns im Ort angesprochen, wie schön unser Haus ist. Klar macht einen das stolz.