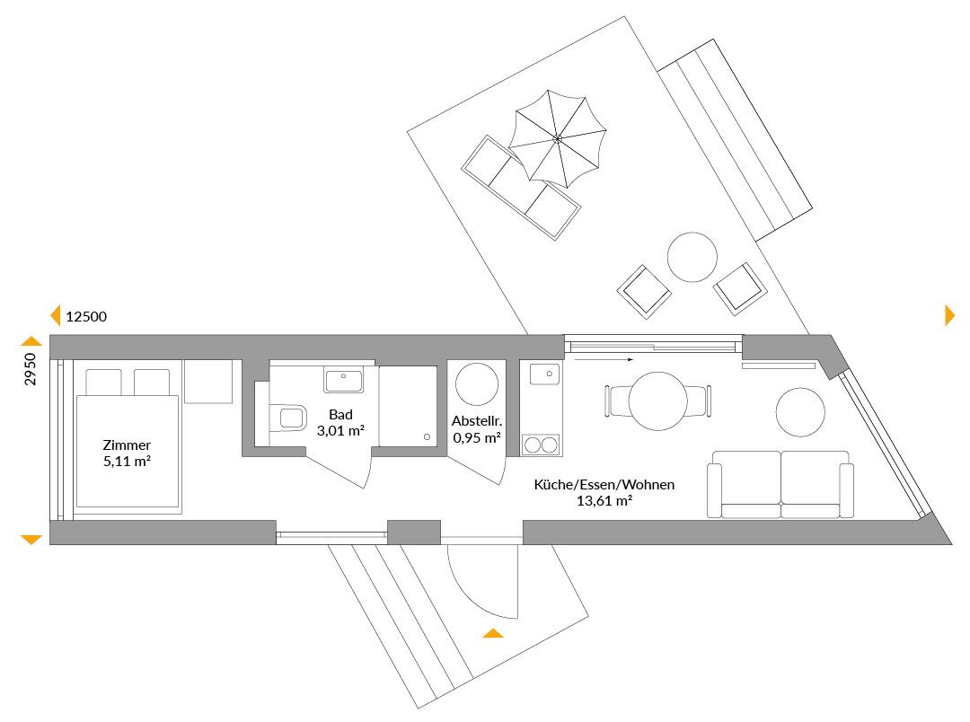
Dauerhaft leben auf kleinstem Raum oder gelegentlich entspannte Auszeiten genießen? Dieses Mini-Haus mit einem Schlafzimmer bildet die Basis für beide Varianten: Klein genug, dass es kaum Arbeit bereitet, groß genug für die wichtigsten Funktionen: Die kleine Küchenzeile hält das Wichtigste bereit, dem komfortablen Duschbad fehlt es an nichts, und gläserne Panoramawände bieten einen herrlichen Ausblick und weiten die Räume optisch.
Hausstandard NEXT Easy
Vollständige Baubeschreibung und Materialspezifikation.

Grundrisse
Kompletter Plan aller Etagen mit Fläche






Sogar fremde Leute haben uns im Ort angesprochen, wie schön unser Haus ist. Klar macht einen das stolz.