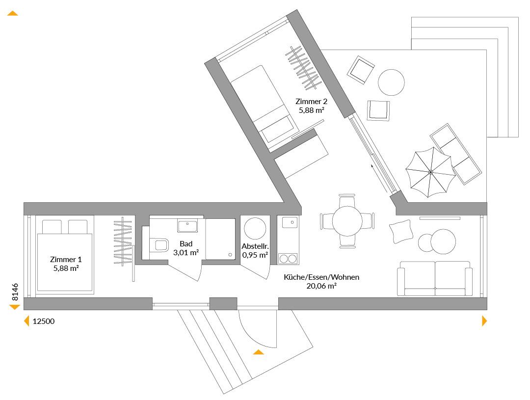
Als dritte Variante zu den beiden vorbeschriebenen Mini-Häusern aus schmalen S-Modulen präsentiert präsentiert ‚sich das knapp 36-Quadratmeter-Domizil in naturfarbener Lamellenverkleidung. Die großen Verglasungen bieten herrliche Aussicht in alle vier Himmelsrichtungen. Auch bei diesem Haus ist dank eines angedockten Flügels ein zweites Schlafzimmer vorhanden und im Übergang zwischen beiden Modulen Platz für einen Esstisch.
Hausstandard NEXT Easy
Vollständige Baubeschreibung und Materialspezifikation.

Grundrisse
Kompletter Plan aller Etagen mit Fläche






Sogar fremde Leute haben uns im Ort angesprochen, wie schön unser Haus ist. Klar macht einen das stolz.