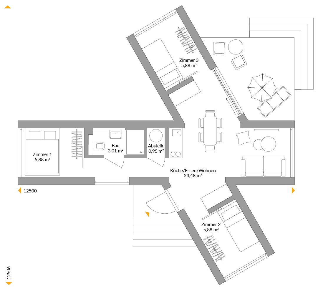
An ein UFO erinnert diese Version aus S-Modulen mit zwei Seitenflügeln. Drei Schlafzimmer aber bieten irdischen Komfort. Da jedes Schlafzimmer durch eine verglaste Wand gekrönt wird, wirkt das kleine Haus recht großzügig und kommt die Natur quasi ans Bett. Auf 45 Quadratmetern finden außerdem eine Mini-Küche, ein Duschbad und der Technikraum Platz. Im Zentrum des Hauses können sich alle am Esstisch versammeln. Von hier führt auch die große Schiebetür auf die Terrasse. Als Ferienhaus perfekt für Familien, zum Dauerwohnen mit Arbeits- und Gästezimmer für Singles und Paare geeignet.
Hausstandard NEXT Easy
Vollständige Baubeschreibung und Materialspezifikation.

Grundrisse
Kompletter Plan aller Etagen mit Fläche






Sogar fremde Leute haben uns im Ort angesprochen, wie schön unser Haus ist. Klar macht einen das stolz.