Zweigeschossiges Haus mit zwei Wohnungen. Zeltdach mit 22° Dachneigung.
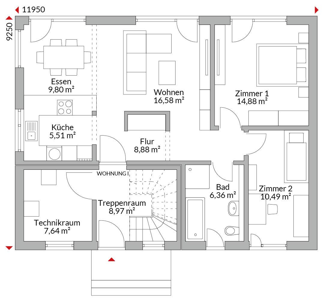
Wohnung 1 im Erdgeschoss: Wohnen/ Essen, offene Küche, Flur, Wannenbad, 2 Schlafzimmer.
Gemeinsamer Zugang zu den Wohnungen, Treppenhaus und Technikraum für Wohnung 1+2 in gemeinsamer Diele.
Wohnung 2 im Obergeschoss: Wohnen/ Essen, offene Küche mit Speisekammer, Flur, Wannenbad, 2 Schlafzimmer.
*Abbildungen zeigen teilweise individuelle Zusatzausstattung.
Hausstandard Today
Vollständige Baubeschreibung und Materialspezifikation.

Grundrisse
Kompletter Plan aller Etagen mit Fläche

Sogar fremde Leute haben uns im Ort angesprochen, wie schön unser Haus ist. Klar macht einen das stolz.