Zweigeschossiges Stadthaus mit zwei getrennten Wohnungen und separaten Zugängen. Externer Zugang zum gemeinsamen Technikraum. Walmdach mit 22° Dachneigung.
Wohnung 1 über zwei Etagen: Erdgeschoss mit schönem Luftraum: Wohnen/ Essen/ offene Küche, Diele, Flur, Gäste-WC, Abstellraum, Gäste- oder Arbeitszimmer, Treppe nach oben, Obergeschoss: 3 Schlafzimmer, begehbare Ankleide, 2 Wannenbäder, davon einmal en Suite, Flur, Garderobe.
Wohnung 2 ebenerdig: Wohnen/ Essen, offene Küche, Duschbad, Diele, 2 Schlafzimmer.
*Abbildungen zeigen teilweise individuelle Zusatzausstattung.
Hausstandard Today
Vollständige Baubeschreibung und Materialspezifikation.

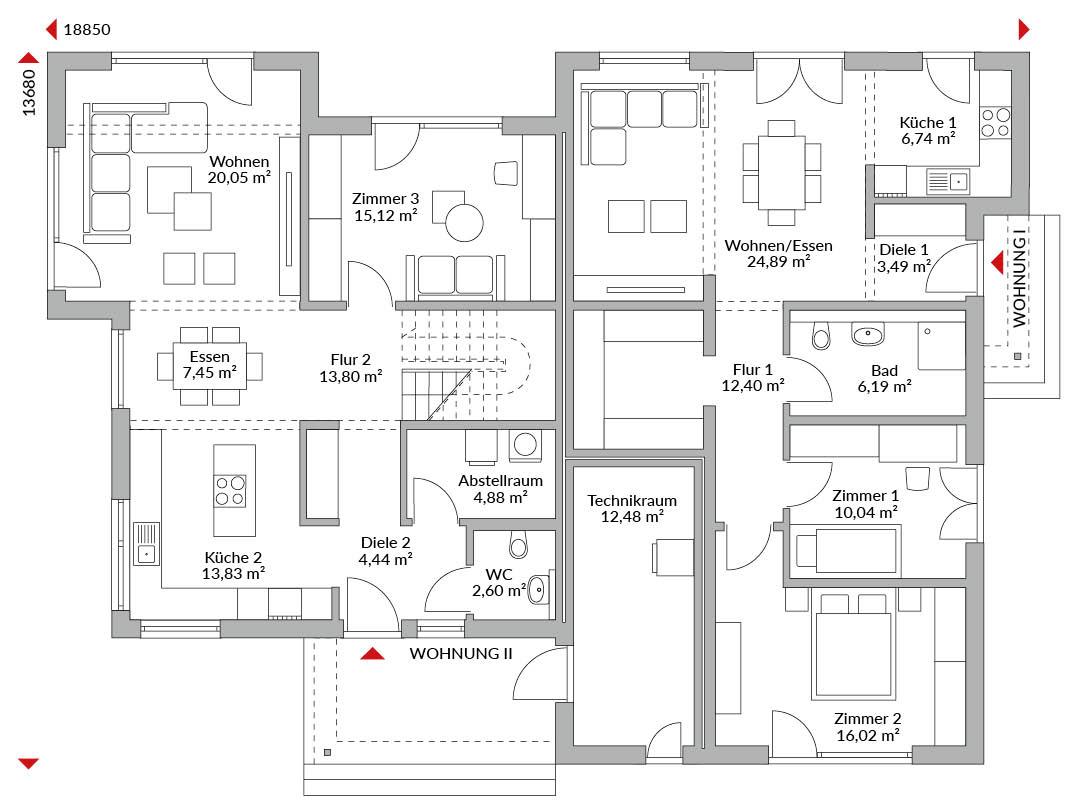
Grundrisse
Kompletter Plan aller Etagen mit Fläche

Sogar fremde Leute haben uns im Ort angesprochen, wie schön unser Haus ist. Klar macht einen das stolz.