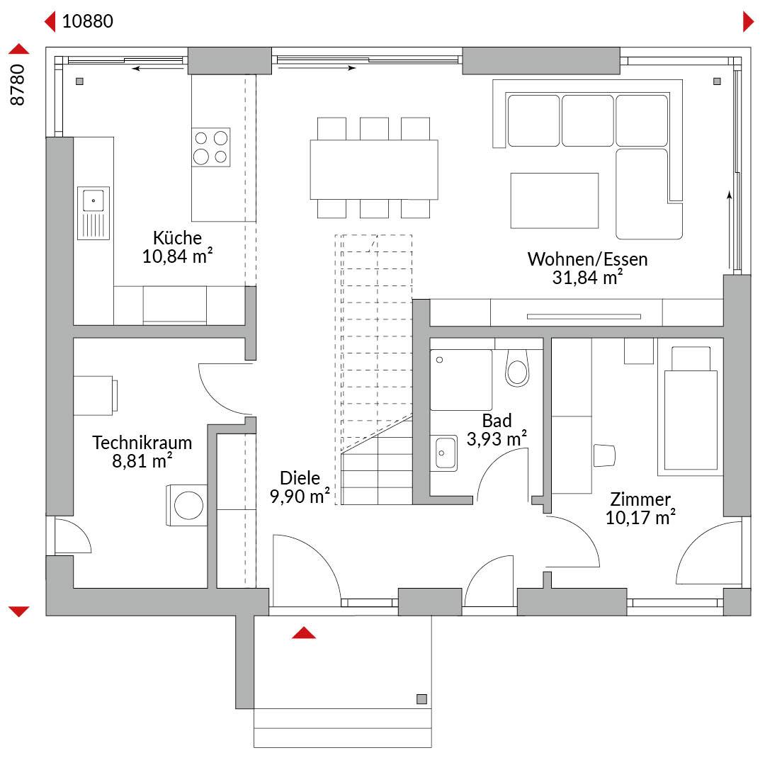
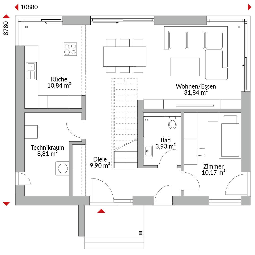
Zweigeschossiges Haus mit Eingangsüberdachung der höheren Haustür und drei Zimmern im Obergeschoss sowie geräumigem Flur. Masterschlafzimmer mit Bad en Suite und freistehender Badewanne, Doppelwaschbecken und Dusche. Zweites Wannenbad mit Dusche und Doppelwaschbecken. Das erhöhte Erdgeschoss mit Eckverglasung im Wohn-/Essbereich sowie Küche und höheren Fenstern ist als offene Küche/ Wohnen/ Essen mit Schiebetüren zur Terrasse konzipiert. Zusätzliches Zimmer mit eigenem Gäste-WC und Dusche, Technikraum und Diele. Zeltdach mit breiter Traufe von 80 cm und 22° Dachneigung.
*Abbildungen zeigen teilweise individuelle Zusatzausstattung.
Hausstandard S-Linie
Vollständige Baubeschreibung und Materialspezifikation.

Grundrisse
Kompletter Plan aller Etagen mit Fläche
Willkommen bei der S-Linie von Danwood, der neuen Dimension des Wohlfühlens. Diese exklusive Serie hebt sich nicht nur durch ihr einmaliges architektonisches Design ab, sondern auch durch eine besondere funktionale Gestaltung, die jedem Wohnraum eine außergewöhnliche Qualität verleiht. Jedes Haus unserer S-Linie zeichnet sich durch eine Reihe von besonderen Merkmalen aus, die für ein luxuriöses Wohnerlebnis sorgen.

Sogar fremde Leute haben uns im Ort angesprochen, wie schön unser Haus ist. Klar macht einen das stolz.