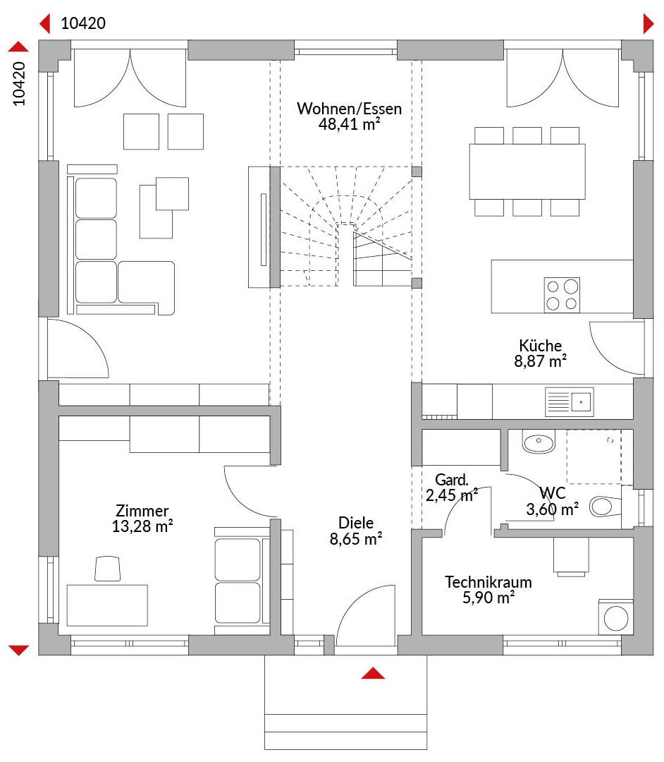
Zweigeschossige Stadtvilla mit fünf Zimmern, offener Küche, geräumigem Wohn-/Essbereich, Gäste-WC, Technikraum und Diele mit Garderobe, Bad und drei Ankleiden im Obergeschoss, Zeltdach mit 22° Dachneigung.
*Abbildungen zeigen teilweise individuelle Zusatzausstattung.
Hausstandard Today
Vollständige Baubeschreibung und Materialspezifikation.

Grundrisse
Kompletter Plan aller Etagen mit Fläche

Sogar fremde Leute haben uns im Ort angesprochen, wie schön unser Haus ist. Klar macht einen das stolz.