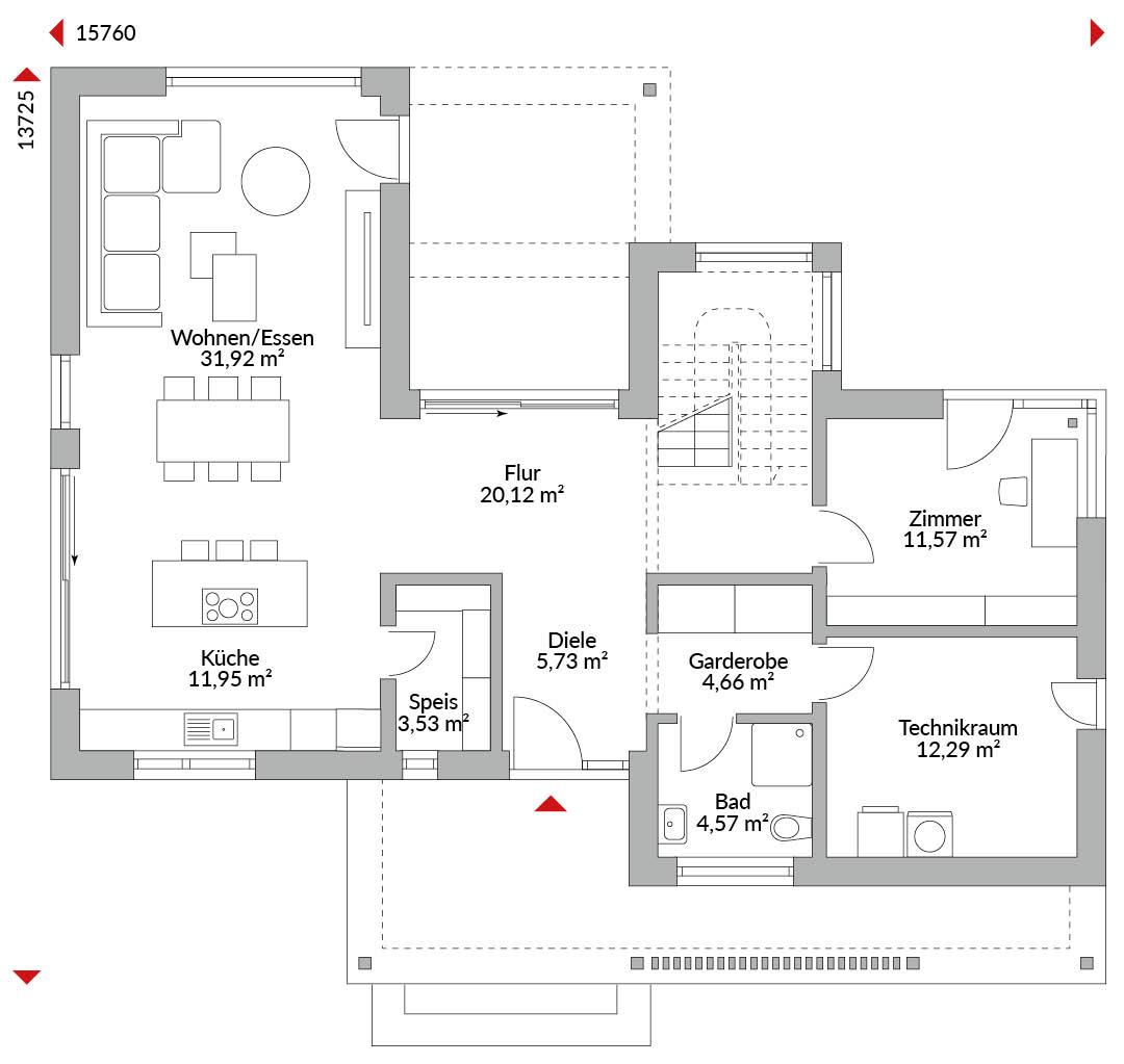
Zweigeschossiges Haus mit breiter Attika-Eingangsüberdachung der höheren Haustür und geradem Eckerker. Durch Dachvorsprung teilüberdachte Terrasse. Drei Zimmer im Obergeschoss, Flur. Masterschlafzimmer mit Bad en Suite mit freistehender Badewanne, Dusche und Doppelwaschbecken sowie separater Ankleide. Zusätzliches zweites Duschbad. Das erhöhte Erdgeschoss ist mit höheren Fenstern als offene Küche/ Wohnen/ Essen mit Schiebetüren zur Terrasse konzipiert. Separate Speisekammer. Gäste-WC, Technikraum und Diele mit Garderobe. Satteldach ohne Dachüberstände, 35° Dachneigung.
*Abbildungen zeigen teilweise individuelle Zusatzausstattung.
Hausstandard S-Linie
Vollständige Baubeschreibung und Materialspezifikation.

Grundrisse
Kompletter Plan aller Etagen mit Fläche
Willkommen bei der S-Linie von Danwood, der neuen Dimension des Wohlfühlens. Diese exklusive Serie hebt sich nicht nur durch ihr einmaliges architektonisches Design ab, sondern auch durch eine besondere funktionale Gestaltung, die jedem Wohnraum eine außergewöhnliche Qualität verleiht. Jedes Haus unserer S-Linie zeichnet sich durch eine Reihe von besonderen Merkmalen aus, die für ein luxuriöses Wohnerlebnis sorgen.

Sogar fremde Leute haben uns im Ort angesprochen, wie schön unser Haus ist. Klar macht einen das stolz.