Klein, fein, mein: Dieser moderne Bungalow für Paare, Singles oder die Minifamilie punktet mit großen Fenstern, viel Tageslicht und einem überzeugenden Grundriss. Pflegeleicht ist er eine echte Alternative zur Mietwohnung. Auch als Zweitwohnsitz oder Ferienhaus genießt man mit dem Family 78 alle Vorzüge. Die mehrfarbige Fassade macht unser kleinstes Haus zum Hingucker - egal, wo er gebaut wird.
*Abbildungen zeigen teilweise individuelle Zusatzausstattung.
Hausstandard Family
Vollständige Baubeschreibung und Materialspezifikation.

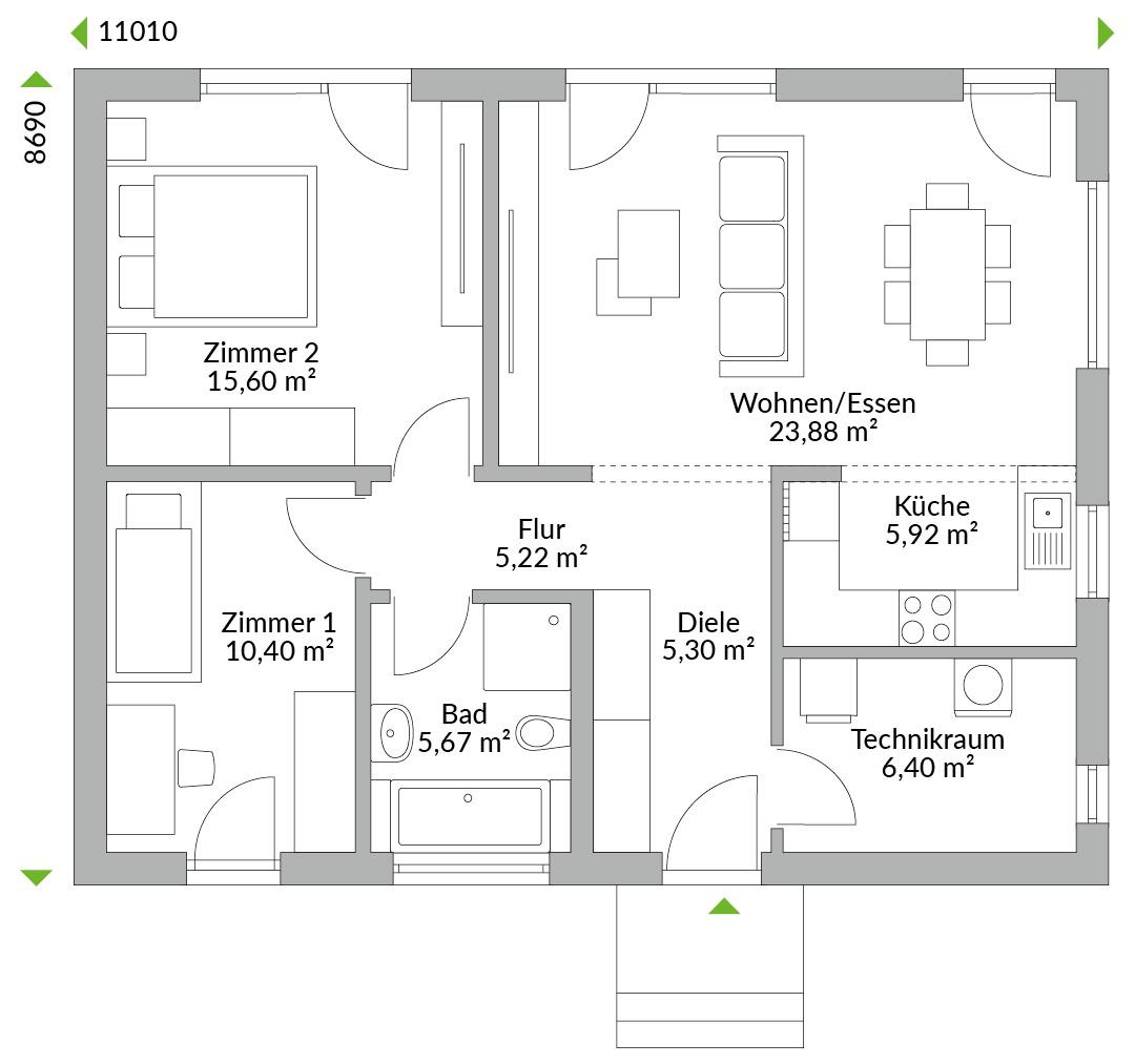
Grundrisse
Kompletter Plan aller Etagen mit Fläche





Mit unserem DAN-WOOD Family-Programm sparen Sie mehrfach: Dank des hohen Vorkonfigurationsgrad am Hauspreis, der klimafreundlichen Bauweise mit günstiger Finanzierung und moderner Haus- und Heiztechnik bei den Heizkosten. Wählen Sie Ihren Wunschhaustyp - ob Bungalow, eineinhalbgeschossiges Haus oder schöner Zweigeschosser.

Sogar fremde Leute haben uns im Ort angesprochen, wie schön unser Haus ist. Klar macht einen das stolz.