Träumen unter schöner Dachlandschaft. In diesem Bungalow ist das nicht nur in Ihrem Bett möglich, hier können Sie bei Wind und Wetter unter dem großen Terrassendach liegen und in die Wolken oder den Nachthimmel schauen. Das imposante Walmdach bietet ausreichend Schutz. Nicht nur beim Träumen. Es schützt Ihre Räume vor großer Hitze, und auch ihre wandhohen Fenster bleiben lange sauber.
*Abbildungen zeigen teilweise individuelle Zusatzausstattung.
Hausstandard NEXT
Vollständige Baubeschreibung und Materialspezifikation.

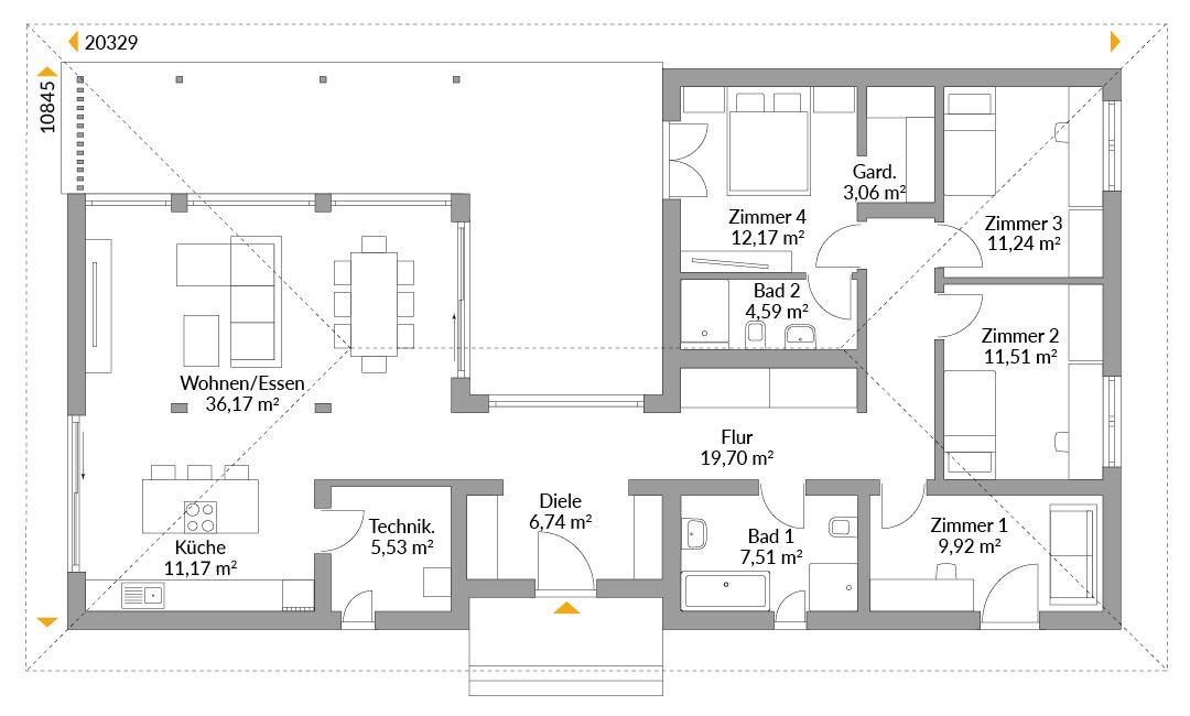
Grundrisse
Kompletter Plan aller Etagen mit Fläche
Das innovative Danwood-Modulbauprogramm bietet smarte schlüsselfertige Modulhäuser in moderner Architektur mit viel Glas, die komplett bis ins Detail im Werk vorgefertigt werden. Sie punkten mit kürzerer Lieferzeit und einer Aufbauzeit von drei Wochen. Ihr Alles-Inklusive-Konzept umfasst modernste Haustechnik, höchste Energieeffizienz und ausgesuchtes Innendesign.

Sogar fremde Leute haben uns im Ort angesprochen, wie schön unser Haus ist. Klar macht einen das stolz.