Der attraktive Satteldachbungalow ist ein Paradies für Paare, die das Besondere lieben. Eine eingeschnitte Terrasse mit darüberliegendenm Dachausschnitt erlaubt es sogar, Bäume in den Himmel wachsen zu lassen. Drei Zimmer, zwei Bäder und eine große Küche sorgen ebenso für höchsten Wohnkomfort wie die effiziente Haustechnik inklusive PV-Anlage mit Speicher und Smart-Home-System.
Der Zusatz „Wood“ im NEXT by Danwood-Hausprogramm kennzeichnet Modulhäuser, deren Rahmenkonstruktion vollständig aus Holz statt aus Stahl besteht.
*Abbildungen zeigen teilweise individuelle Zusatzausstattung.
Hausstandard NEXT
Vollständige Baubeschreibung und Materialspezifikation.

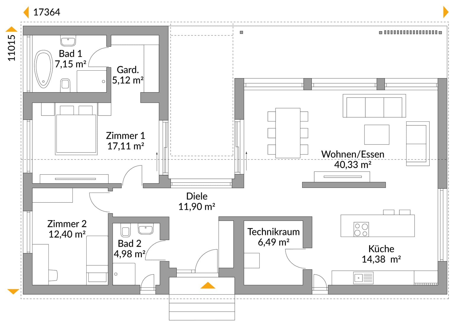
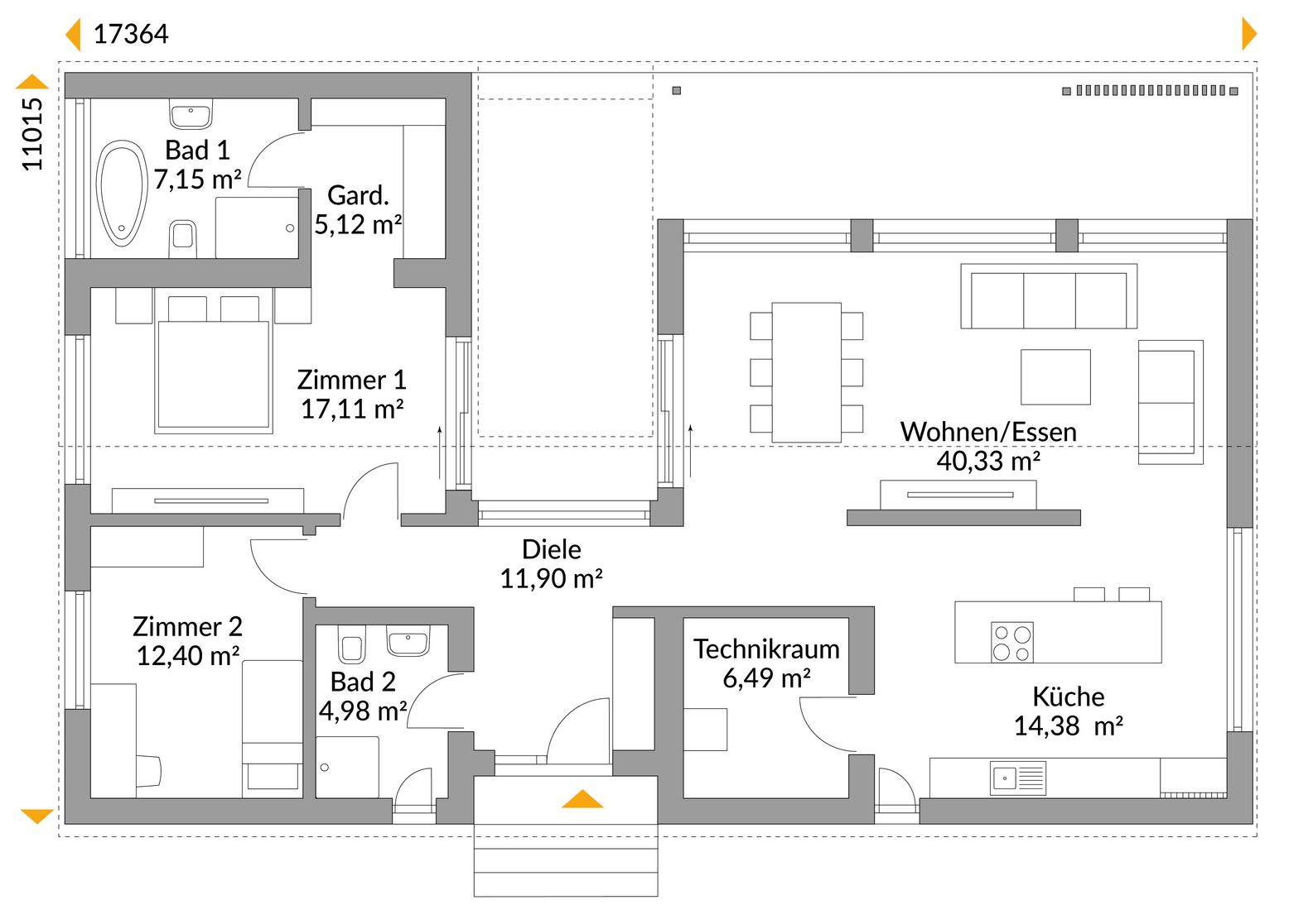
Grundrisse
Kompletter Plan aller Etagen mit Fläche





Das innovative Danwood-Modulbauprogramm bietet smarte schlüsselfertige Modulhäuser in moderner Architektur mit viel Glas, die komplett bis ins Detail im Werk vorgefertigt werden. Sie punkten mit kürzerer Lieferzeit und einer Aufbauzeit von drei Wochen. Ihr Alles-Inklusive-Konzept umfasst modernste Haustechnik, höchste Energieeffizienz und ausgesuchtes Innendesign.

Sogar fremde Leute haben uns im Ort angesprochen, wie schön unser Haus ist. Klar macht einen das stolz.