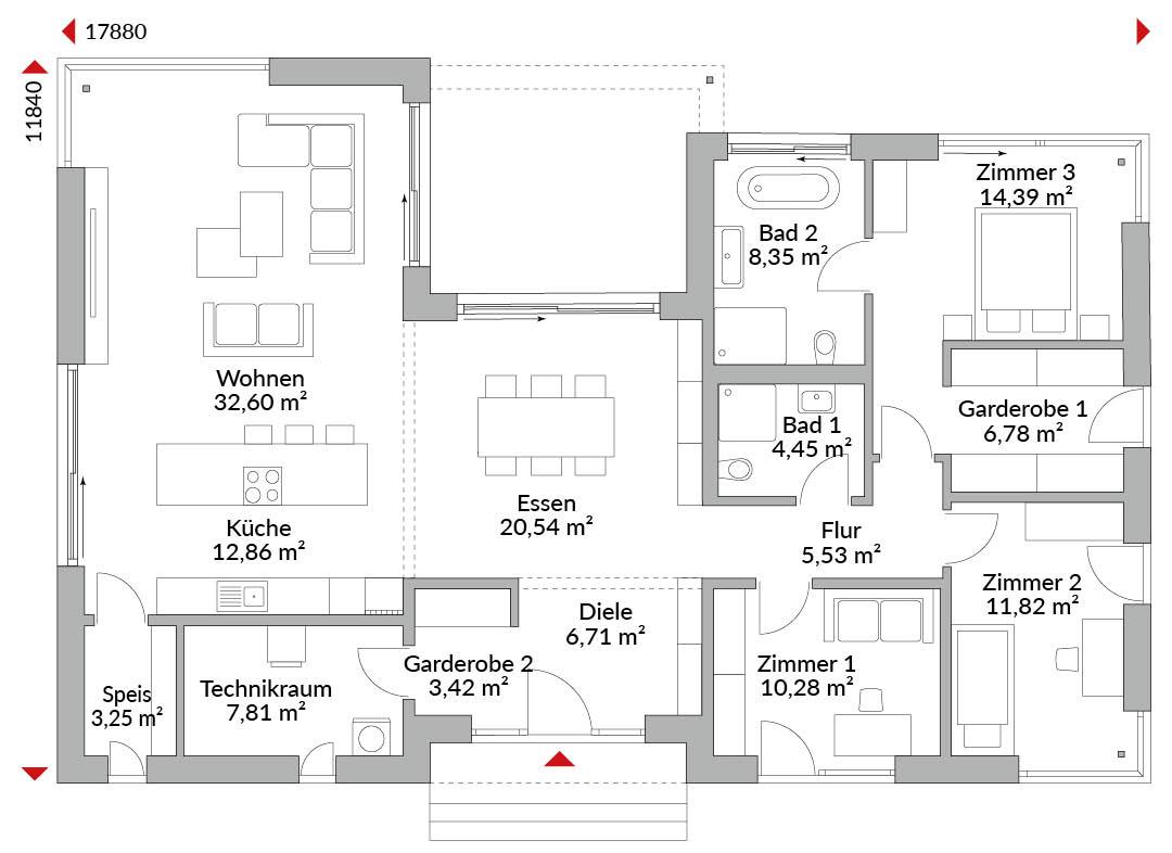
Winkelbungalow mit integrierter Eingangsüberdachung der höheren beidseitigen Sichtfenster-Haustür und drei Schlafzimmern. Hauptschlafzimmer mit Bad en Suite und freistehender Badewanne, Doppelwaschbecken sowie Dusche. Zwei separate Garderoben, davon eine als Ankleide nutzbar. Das erhöhte Wohngeschoss mit Eckverglasungen und höheren Fenstern ist als offene Küche / Wohnen/ Essen mit Schiebetüren zur Terrasse konzipiert. Speisekammer, Gäste-Bad mit Dusche, Technikraum und Diele, Flur. Walmdach mit breiter Traufe von 60 cm und 22° Dachneigung inklusive Terrassenüberdachung.
*Abbildungen zeigen teilweise individuelle Zusatzausstattung.
Hausstandard S-Linie
Vollständige Baubeschreibung und Materialspezifikation.

Grundrisse
Kompletter Plan aller Etagen mit Fläche





Willkommen bei der S-Linie von Danwood, der neuen Dimension des Wohlfühlens. Diese exklusive Serie hebt sich nicht nur durch ihr einmaliges architektonisches Design ab, sondern auch durch eine besondere funktionale Gestaltung, die jedem Wohnraum eine außergewöhnliche Qualität verleiht. Jedes Haus unserer S-Linie zeichnet sich durch eine Reihe von besonderen Merkmalen aus, die für ein luxuriöses Wohnerlebnis sorgen.

Sogar fremde Leute haben uns im Ort angesprochen, wie schön unser Haus ist. Klar macht einen das stolz.