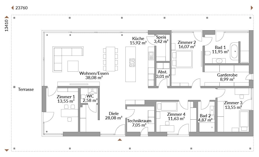
Ein großzügiger Bungalow im Loft-Stil, dessen Wände fast zur Hälfte aus Glas bestehen – das ist purer Luxus! Die Transparenz in Richtung Natur und die Weitläufigkeit im Inneren schaffen ein fast grenzenloses Wohnvergnügen. Bereits die Diele empfängt mit ungewohnter Großzügigkeit und hält im Separee viel Platz für Jacken, Taschen und Schuhe parat. In dieser Nische findet man auch das Gäste-WC.
*Abbildungen zeigen teilweise individuelle Zusatzausstattung.
Hausstandard Vision
Vollständige Baubeschreibung und Materialspezifikation.

Grundrisse
Kompletter Plan aller Etagen mit Fläche






Sogar fremde Leute haben uns im Ort angesprochen, wie schön unser Haus ist. Klar macht einen das stolz.