Sieben tolle Grundrissentwürfe stellen Sie beim Family 155 vor eine knifflige Wahl: Denn alle überzeugen mit speziellen Features. Vier Varianten für das Erdgeschoss, drei für das Obergeschoss halten wir für dieses Familienhaus bereit, die Sie auch unterschiedlich mischen können. Sie brauchen im Wohn- und Essbereich viel Platz? Kein Problem. Soll es ein Arbeits- oder Gästezimmer im Erdgeschoss sein? Auch kein Problem. Möchten Sie den Hauswirtschaftsraum nicht missen? Auch diesen Wunsch erfüllen wir Ihnen.
Jeder Grundriss bietet nicht nur im Erdgeschoss alle Annehmlichkeiten, auch der obere Bereich des Hauses hält viel Platz für alle Familienmitglieder bereit. Auch für die Großeltern findet sich hier eine schöne Rückzugsmöglichkeit.
Das Obergeschoss überzeugt ebenfalls mit klaren Strukturen - inklusive eines großen Familienbades, Ankleide oder eines Abstellraums, den Sie lieben werden. Sie brauchen noch mehr Platz? Auch das ist möglich. Denn wenn es Ihr Bebauungsplan erlaubt, können Sie sich für einen erhöhten Kniestock auf 1,25 m oder 1,50 m entscheiden – eine Möglichkeit, die wir für alle 1,5-Geschosser bieten.
*Abbildungen zeigen teilweise individuelle Zusatzausstattung.
Hausstandard Family
Vollständige Baubeschreibung und Materialspezifikation.

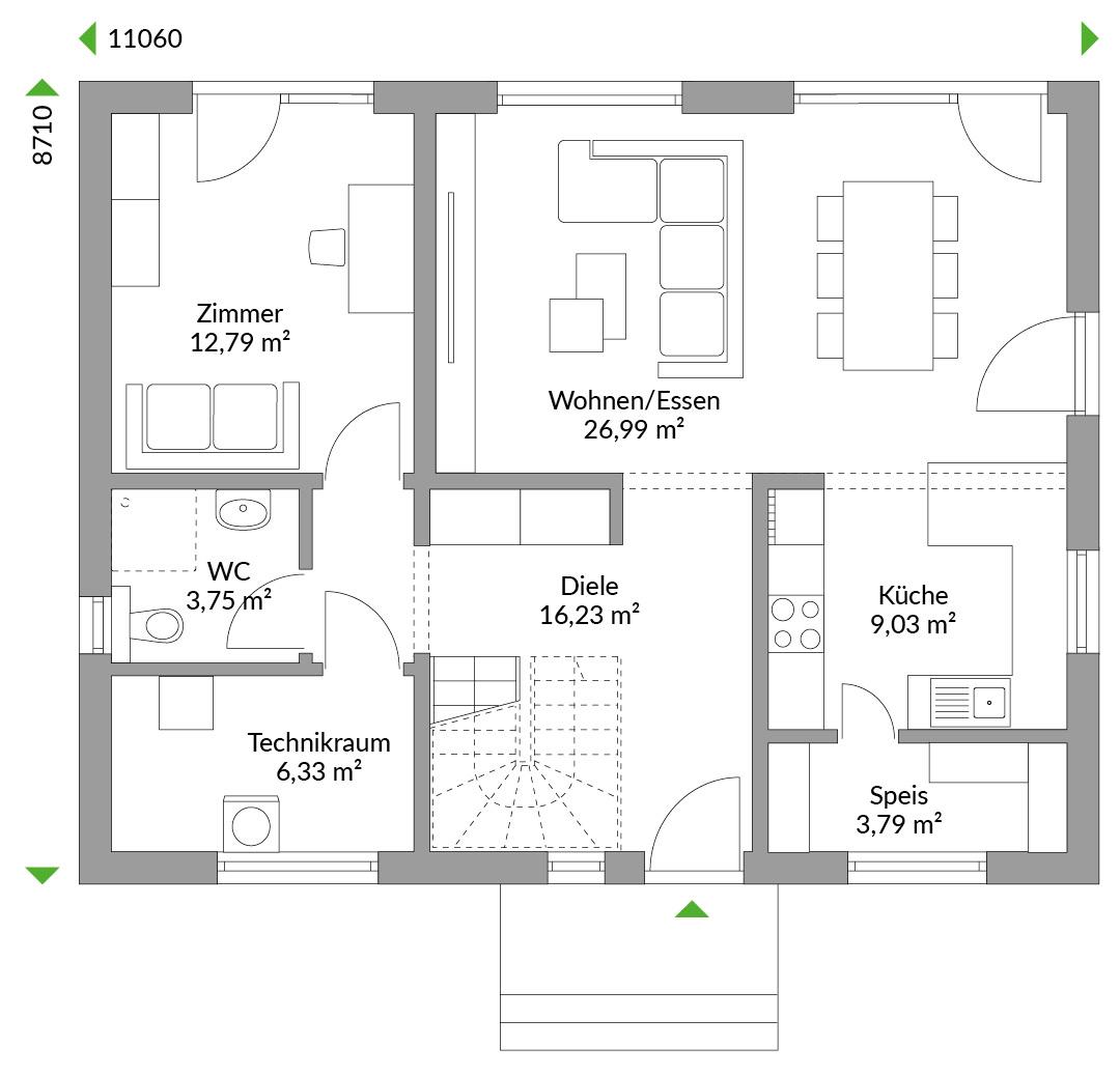
Grundrisse
Kompletter Plan aller Etagen mit Fläche





Mit unserem DAN-WOOD Family-Programm sparen Sie mehrfach: Dank des hohen Vorkonfigurationsgrad am Hauspreis, der klimafreundlichen Bauweise mit günstiger Finanzierung und moderner Haus- und Heiztechnik bei den Heizkosten. Wählen Sie Ihren Wunschhaustyp - ob Bungalow, eineinhalbgeschossiges Haus oder schöner Zweigeschosser.

Sogar fremde Leute haben uns im Ort angesprochen, wie schön unser Haus ist. Klar macht einen das stolz.