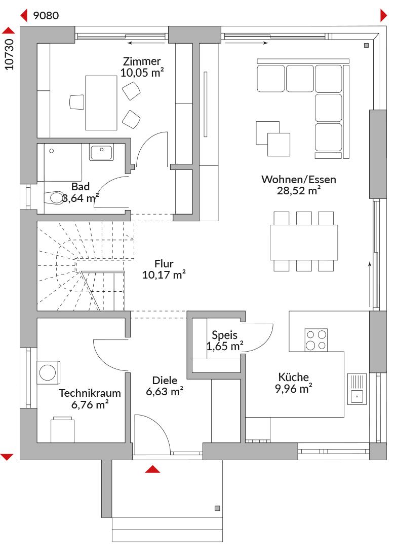
Eineinhalbgeschossiges Haus mit Eingangsüberdachung der höheren Haustür und mit drei Zimmern im Obergeschoss. Schlafzimmer mit begehbarer Ankleide. Bodentiefe Verglasung mit französischen Balkonen aus Glas, Wannenbad mit Dusche und Doppelwaschbecken, Gästezimmer im Erdgeschoss mit eigenem Gäste-WC mit Dusche. Das höhere Erdgeschoss mit erhöhter Eckverglasung ist als offene Küche mit Eckfensterlösung/ Wohnen/ Essen mit Schiebetüren zur Terrasse konzipiert. Speisekammer, Technikraum und Diele mit Garderobe, Flur, Satteldach mit breiter Traufe von 60 cm, 40° Dachneigung, Kniestock 1,00 m.
*Abbildungen zeigen teilweise individuelle Zusatzausstattung.
Hausstandard S-Linie
Vollständige Baubeschreibung und Materialspezifikation.

Grundrisse
Kompletter Plan aller Etagen mit Fläche
Willkommen bei der S-Linie von Danwood, der neuen Dimension des Wohlfühlens. Diese exklusive Serie hebt sich nicht nur durch ihr einmaliges architektonisches Design ab, sondern auch durch eine besondere funktionale Gestaltung, die jedem Wohnraum eine außergewöhnliche Qualität verleiht. Jedes Haus unserer S-Linie zeichnet sich durch eine Reihe von besonderen Merkmalen aus, die für ein luxuriöses Wohnerlebnis sorgen.

Sogar fremde Leute haben uns im Ort angesprochen, wie schön unser Haus ist. Klar macht einen das stolz.