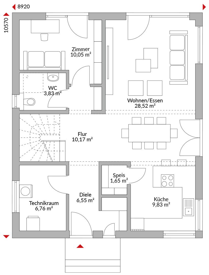
Eineinhalbgeschossiges Haus mit fünf Zimmern, einer Ankleide, offener Küche, Speisekammer, Bad, Gäste-WC, Technikraum, Diele und Flur, Satteldach mit 40° Dachneigung, Kniestock 0,75 m.
*Abbildungen zeigen teilweise individuelle Zusatzausstattung.
Hausstandard Today
Vollständige Baubeschreibung und Materialspezifikation.

Grundrisse
Kompletter Plan aller Etagen mit Fläche

Sogar fremde Leute haben uns im Ort angesprochen, wie schön unser Haus ist. Klar macht einen das stolz.