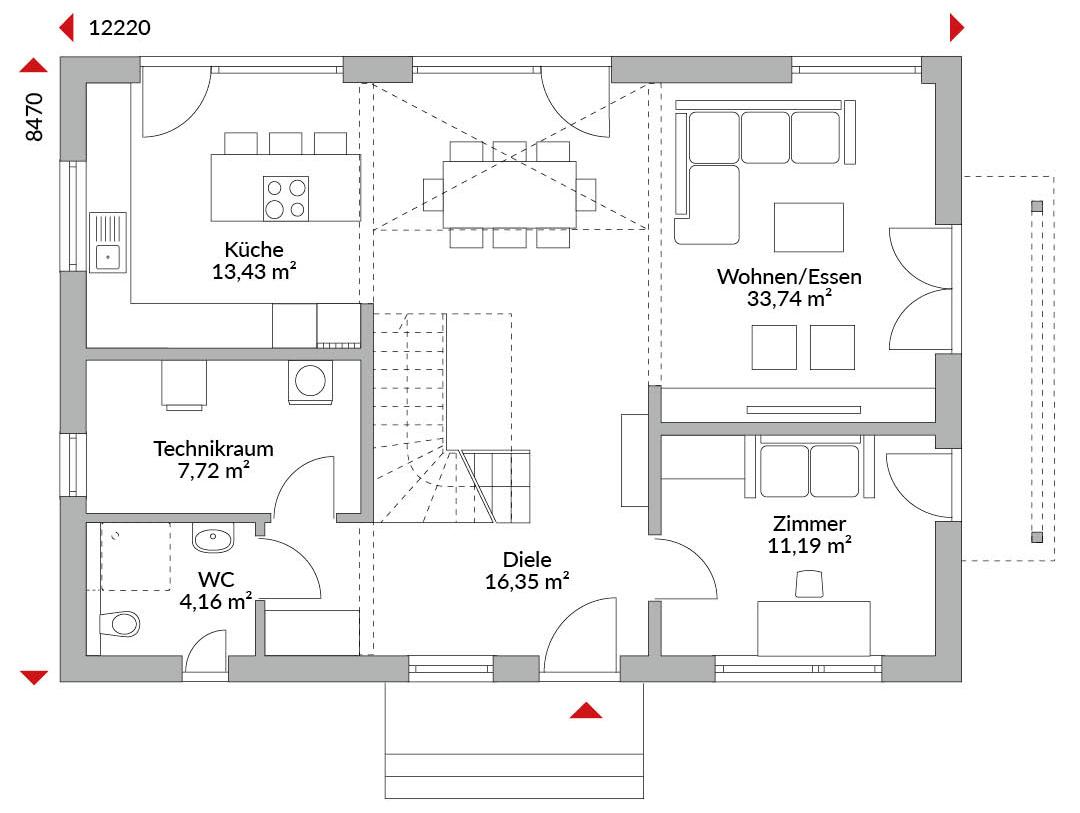
Eineinhalbgeschossiges Haus mit fünf Zimmern, Ankleide, offener Küche, Bad, Gäste-WC , Technikraum, Diele und Luftraum. Satteldach mit 25° Dachneigung, Kniestock 2,00 m. Inklusive Balkon.
*Abbildungen zeigen teilweise individuelle Zusatzausstattung.
Hausstandard Today
Vollständige Baubeschreibung und Materialspezifikation.

Grundrisse
Kompletter Plan aller Etagen mit Fläche

Sogar fremde Leute haben uns im Ort angesprochen, wie schön unser Haus ist. Klar macht einen das stolz.