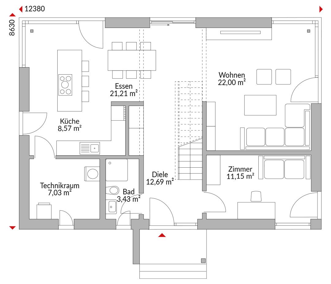
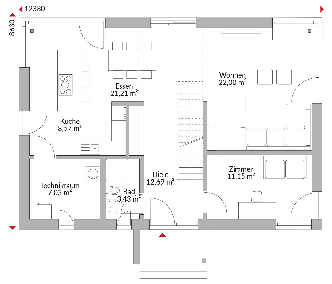
Eineinhalbgeschossiges Haus mit überdachtem Eingangsbereich der höheren Haustür. Das höhere Erdgeschoss im Essbereich mit seinen höheren Fenstern ist als offene Küche zum unmittelbar anschließenden Wohn-Essbereich konzipiert - mit Eckverglasung im Essbereich und Wohnzimmer sowie Schiebetür zur Terrasse und in den Garten. Separates Studio für Gäste oder als Homeoffice sowie Gäste-WC. Drei Schlafzimmer, begehbare Garderobe von zwei Schlafzimmern aus. Ein Schlafzimmer mit Bad-en-Suite und begehbarer Ankleide. Zusätzliches Duschbad und Abstellraum. Technikraum, Diele und Flur. Satteldach mit breiter Traufe von 60 cm, 25° Dachneigung, Kniestock 2,00 m.
*Abbildungen zeigen teilweise individuelle Zusatzausstattung.
Hausstandard S-Linie
Vollständige Baubeschreibung und Materialspezifikation.

Grundrisse
Kompletter Plan aller Etagen mit Fläche
Willkommen bei der S-Linie von Danwood, der neuen Dimension des Wohlfühlens. Diese exklusive Serie hebt sich nicht nur durch ihr einmaliges architektonisches Design ab, sondern auch durch eine besondere funktionale Gestaltung, die jedem Wohnraum eine außergewöhnliche Qualität verleiht. Jedes Haus unserer S-Linie zeichnet sich durch eine Reihe von besonderen Merkmalen aus, die für ein luxuriöses Wohnerlebnis sorgen.

Sogar fremde Leute haben uns im Ort angesprochen, wie schön unser Haus ist. Klar macht einen das stolz.