Es ist, als ob Sie die Himmelsleiter hinaufsteigen. Der Weg ins Obergeschoss führt quasi ins Unendliche. Baumwipfel winken, Wolken ziehen vorüber und die Sterne sind zum Greifen nah. Die gläserne Fassade und ein gläsernes Dach formen am Ende der schönen Treppe eine Loge aus Glas und Licht. Was für ein Raumgefühl!
*Abbildungen zeigen teilweise individuelle Zusatzausstattung.
Hausstandard Vision
Vollständige Baubeschreibung und Materialspezifikation.

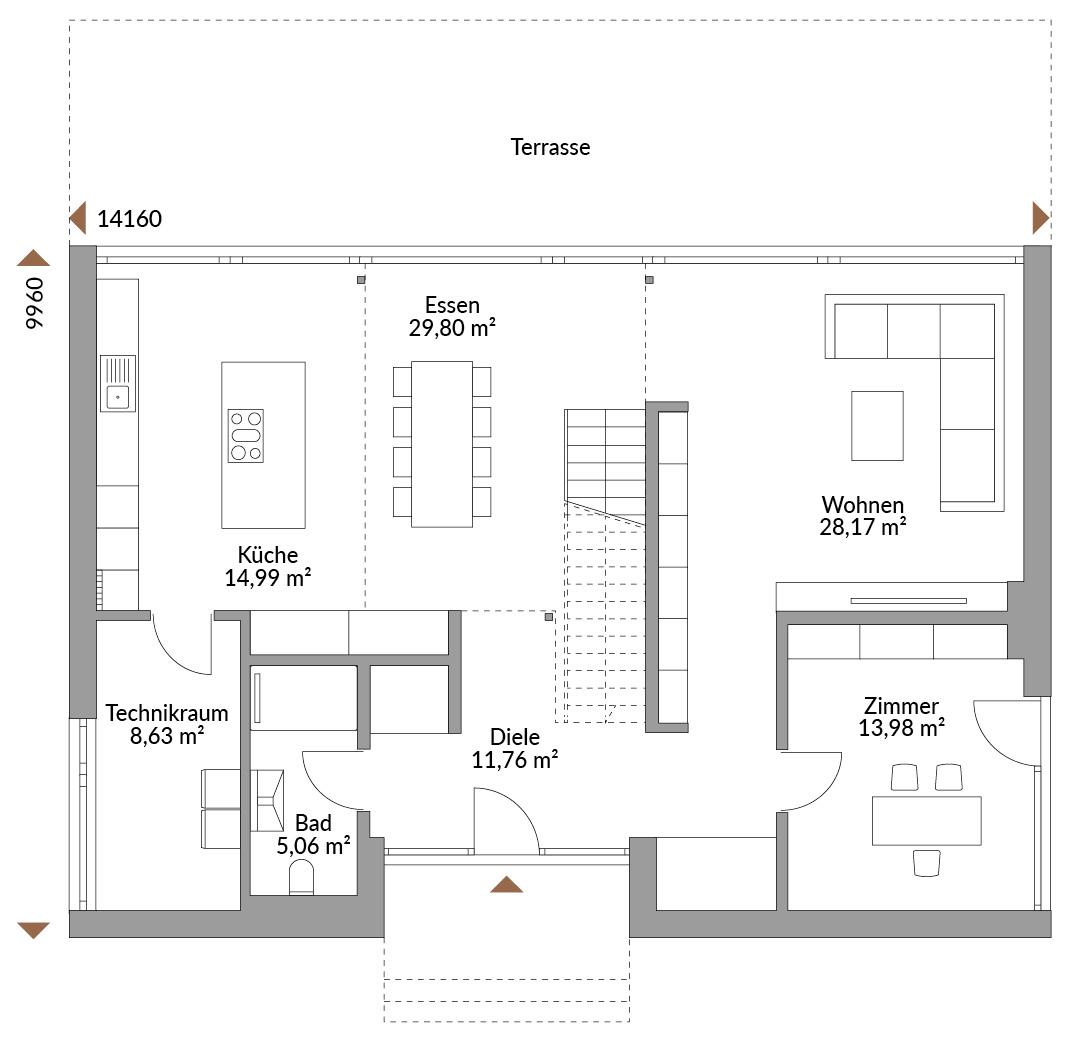
Grundrisse
Kompletter Plan aller Etagen mit Fläche






Sogar fremde Leute haben uns im Ort angesprochen, wie schön unser Haus ist. Klar macht einen das stolz.