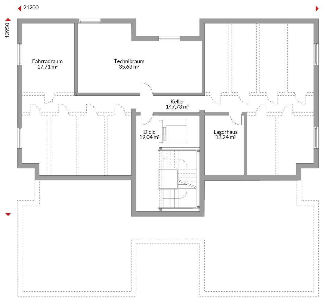
Dreivollgeschossiges Mehrfamilienhaus (19 635 m x 21 280 m, Gesamtnutzfläche 1099,43 m²) mit zehn Wohneinheiten von rund 60 m² bis zirka 89 m². Flachdach. Kein Stellflächenverlust im OG. Erdgeschoss und 1. Obergeschoss vier Wohnungen. Obergeschoss zwei Wohnungen. Kellergeschoss mit Technik- und Fahrradraum sowie Lagerflächen für jede Wohnung. Aufzug vom Keller ins OG.
Zugänge zu den Wohnungen über ein gemeinsames Treppenhaus, in dem sich auch der Aufzug befindet.
Wohnungen Erdgeschoss: Zwei Wohnungen a ein Zimmer, Duschbad, Wohnen / Essen/Küche, Diele, Lagerraum. Zwei Wohnungen a zwei Zimmer, Wohnen/ Essen/ Küche, Diele, Duschbad, Lagerraum.
Wohnungen 1. Obergeschoss: Zwei Wohnungen a ein Zimmer, Wohnen/ Essen/ Küche, Wannenbad, Diele, Lagerraum Zwei Wohnungen a zwei Zimmer, Wohnen/ Essen/ Küche, Wannenbad, Diele, Lagerraum.
Wohnungen 2. Obergeschoss: Zwei Wohnungen a zwei Zimmer, Wohnen/ Essen/ Küche, Wannenbad, WC, Diele, Flur Lagerraum.
Balkon, Terrasse im Erdgeschoss und 1. Obergeschoss gegen auf Aufpreis.
*Abbildungen zeigen teilweise individuelle Zusatzausstattung.
Hausstandard Mehrfamilienhäuser
Vollständige Baubeschreibung und Materialspezifikation.

Grundrisse
Kompletter Plan aller Etagen mit Fläche

Sogar fremde Leute haben uns im Ort angesprochen, wie schön unser Haus ist. Klar macht einen das stolz.