Vollunterkellertes und dreivollgeschossiges Mehrfamilienhaus (17 856 m x 21 562 m, Gesamtnutzfläche 1137,58 m²) mit zwölf Wohneinheiten von rund 65 m² bis zirka 75 m². Flachdach. Kein Stellflächenverlust im Obergeschoss.
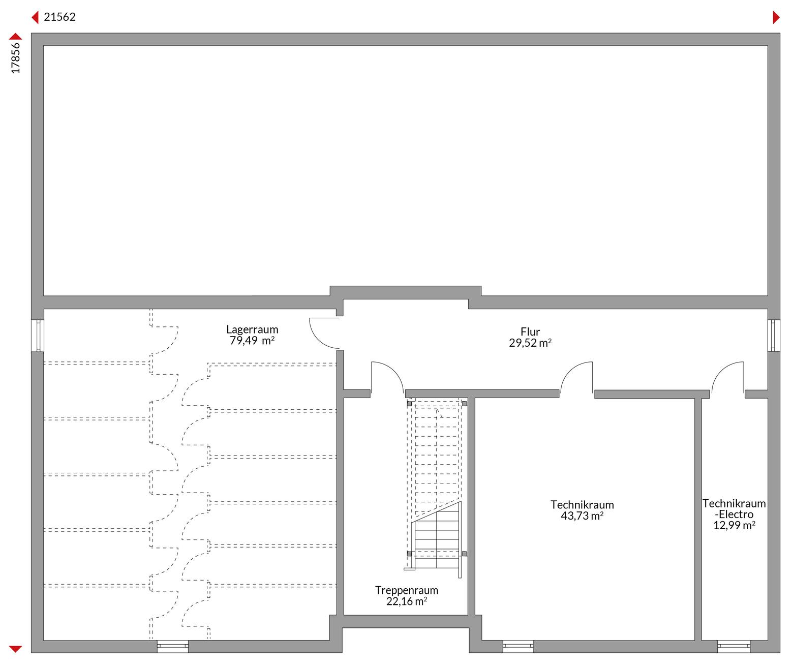
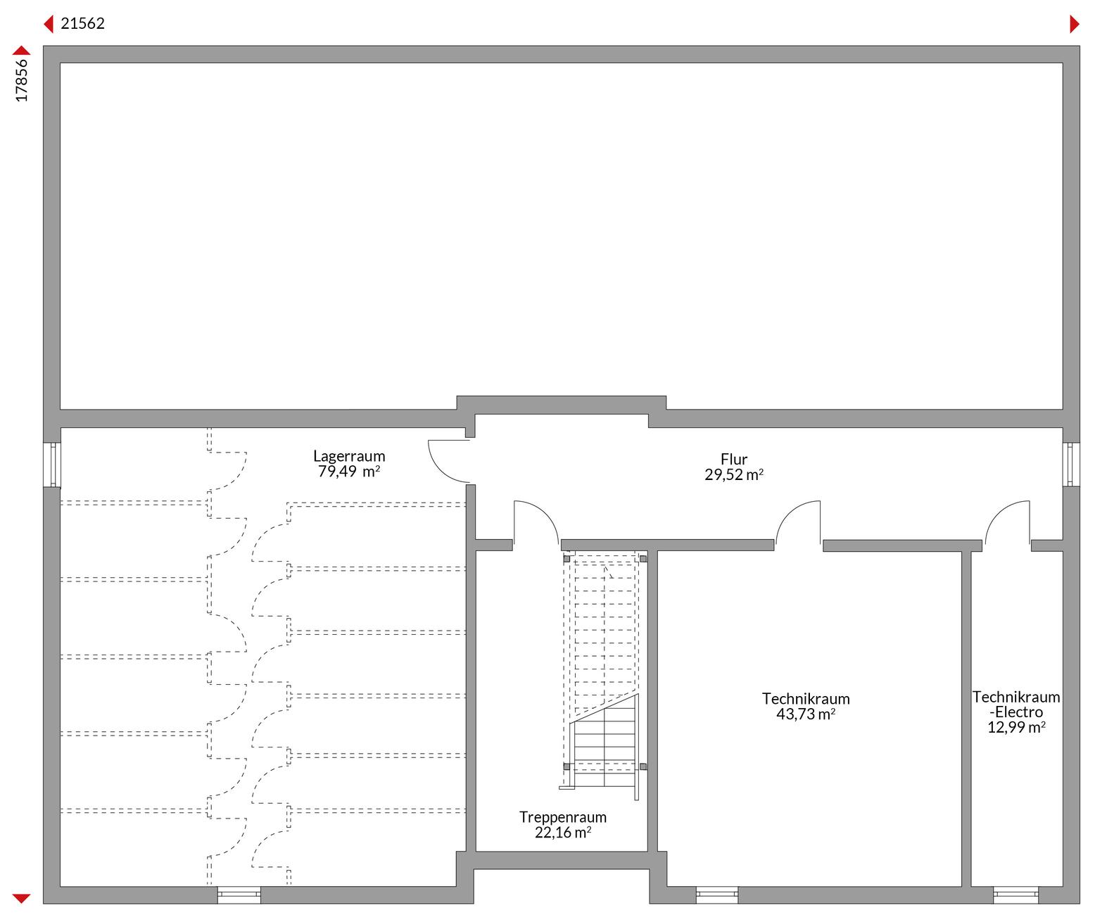
Pro Geschoss je vier Wohnungen. Kellergeschoss (17 856 m x 21 562 m, 186,95 m² NF) mit Technik- und Fahrradraum sowie Lagerflächen für jede Wohnung. Die Zugänge zu den Wohnungen werden über ein gemeinsames Treppenhaus erschlossen.
Wohnungen Erdgeschoss: Zwei Wohnungen a ein Zimmer, Duschbad, Wohnen / Essen/Küche, Diele, Flur, Abstellraum. Zwei Wohnungen a zwei Zimmer, Wohnen/ Essen/ Küche, Diele, Flur, Duschbad, Abstellraum.
Wohnungen 1. Obergeschoss: Zwei Wohnungen a ein Zimmer, Duschbad, Wohnen / Essen/Küche, Diele, Flur, Abstellraum. Zwei Wohnungen a zwei Zimmer, Wohnen/ Essen/ Küche, Diele, Flur, Duschbad, Abstellraum.
Wohnungen 2. Obergeschoss: Zwei Wohnungen a ein Zimmer, Duschbad, Wohnen / Essen/Küche, Diele, Flur, Abstellraum. Zwei Wohnungen a zwei Zimmer, Wohnen/ Essen/ Küche, Diele, Flur, Duschbad, Abstellraum.
Balkone, Terrassen gegen auf Aufpreis.
*Abbildungen zeigen teilweise individuelle Zusatzausstattung.
Hausstandard Mehrfamilienhäuser
Vollständige Baubeschreibung und Materialspezifikation.

Grundrisse
Kompletter Plan aller Etagen mit Fläche

Sogar fremde Leute haben uns im Ort angesprochen, wie schön unser Haus ist. Klar macht einen das stolz.