Eineinhalbgeschossiges Haus mit zwei Wohnungen. Separate Zugänge zu den Wohnungen. Externer Zugang zum gemeinsamen Technikraum. Satteldach mit 25° Dachneigung. Kniestock 1,75 m.
Wohnung 1 über zwei Etagen: Erdgeschoss: Diele mit Treppe nach oben, Gäste-WC, 1 Schlafzimmer. Obergeschoss: Wohnen/ Essen, offene Küche, Flur, Garderobe, 2 Schlafzimmer, 1 Wannenbad.
Wohnung 2 ebenerdig: Wohnen/ Essen, offene Küche, Duschbad, Diele, 1 Schlafzimmer.
*Abbildungen zeigen teilweise individuelle Zusatzausstattung.
Hausstandard Today
Vollständige Baubeschreibung und Materialspezifikation.

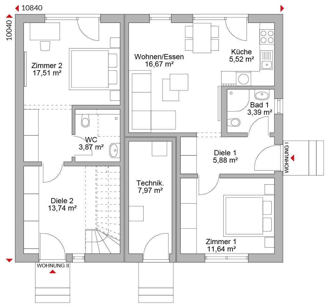
Grundrisse
Kompletter Plan aller Etagen mit Fläche

Sogar fremde Leute haben uns im Ort angesprochen, wie schön unser Haus ist. Klar macht einen das stolz.