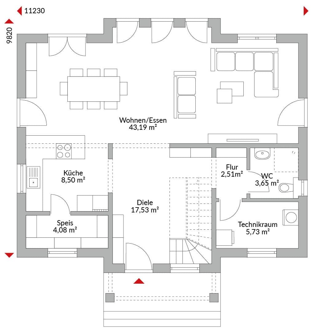
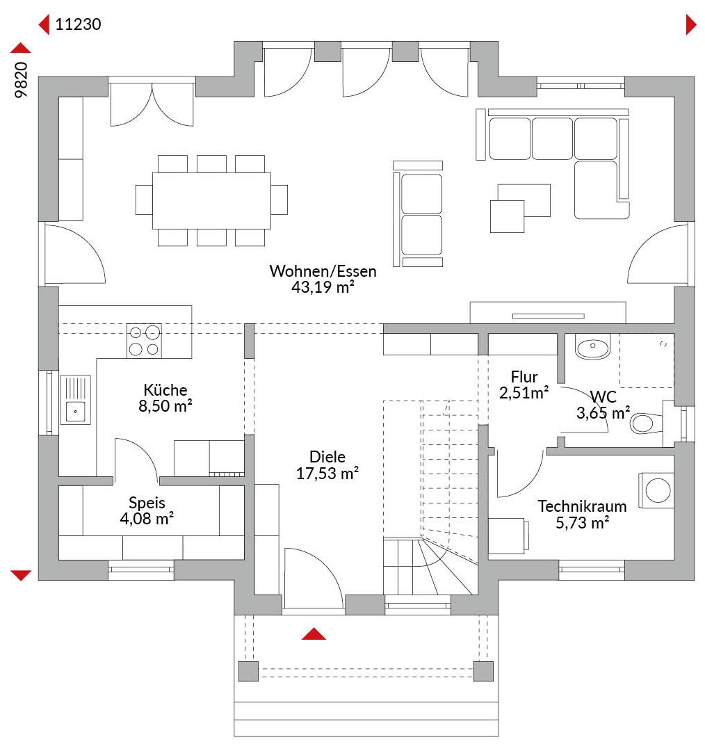
Zweigeschossige Stadtvilla mit drei Zimmern, offener Küche, Speisekammer, geräumigem Wohn-/Essbereich, Gäste-WC, Technikraum und Diele, Bad und großer Ankleide plus Abstellraum im Obergeschoss, Zeltdach mit 22° Dachneigung.
*Abbildungen zeigen teilweise individuelle Zusatzausstattung.
Hausstandard Today
Vollständige Baubeschreibung und Materialspezifikation.

Grundrisse
Kompletter Plan aller Etagen mit Fläche

Sogar fremde Leute haben uns im Ort angesprochen, wie schön unser Haus ist. Klar macht einen das stolz.