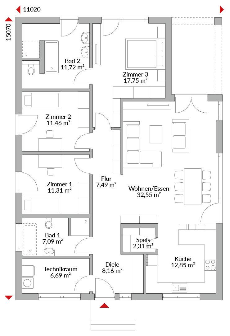
Bungalow mit vier Zimmern, En-Suite-Bad mit T-Lösung, offener Küche, Speisekammer, Gäste-Bad, Technikraum, Flur und Diele. Satteldach mit 22° Dachneigung inkl. Terrassenüberdachung
*Abbildungen zeigen teilweise individuelle Zusatzausstattung.
Hausstandard Today
Vollständige Baubeschreibung und Materialspezifikation.

Grundrisse
Kompletter Plan aller Etagen mit Fläche






Sogar fremde Leute haben uns im Ort angesprochen, wie schön unser Haus ist. Klar macht einen das stolz.