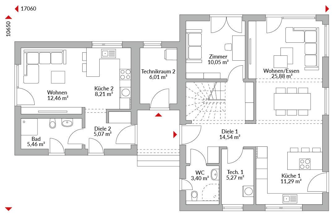
Eineinhalbgeschossiges Haus mit 5 Zimmern, Ankleide, offener Küche, Bad, Gäste-WC, Diele und Hauswirtschaftsraum. Satteldach mit 40° Dachneigung. Kniestock 0,75 m. Ebenerdiger Anbau mit 1 Zimmer, offener Küche, Duschbad und Diele. Gemeinsamer Technikraum. Satteldach mit 30° Dachneigung.
*Abbildungen zeigen teilweise individuelle Zusatzausstattung.
Hausstandard Today
Vollständige Baubeschreibung und Materialspezifikation.

Grundrisse
Kompletter Plan aller Etagen mit Fläche

Sogar fremde Leute haben uns im Ort angesprochen, wie schön unser Haus ist. Klar macht einen das stolz.