„Ein Haus ist nur bewohnbar, wenn es voller Licht und Luft ist!“ Was aus dem Mund von Le Corbusier, einem der einflussreichsten Architekten des 20. Jahrhunderts, 1923 wie eine revolutionäre Idee daherkam, ist heute fester Bestandteil der modernen Architektur. In dieser modernen Villa von Danwood „Vision 172“ wird dies zur Perfektion getrieben.
*Abbildungen zeigen teilweise individuelle Zusatzausstattung.
Hausstandard Vision
Vollständige Baubeschreibung und Materialspezifikation.

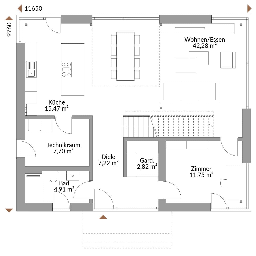
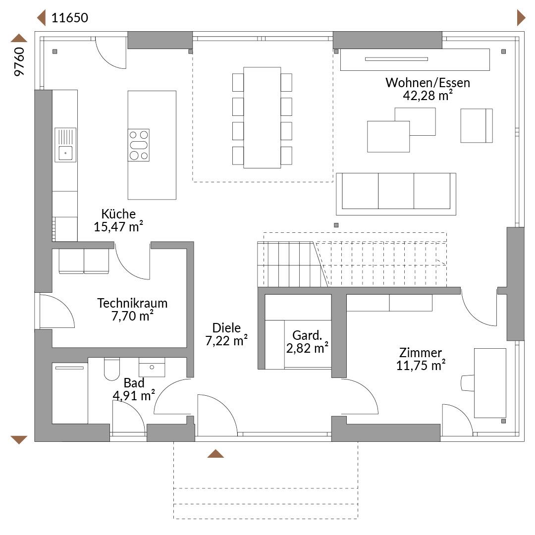
Grundrisse
Kompletter Plan aller Etagen mit Fläche






Sogar fremde Leute haben uns im Ort angesprochen, wie schön unser Haus ist. Klar macht einen das stolz.