Eineinhalbgeschossiges Haus mit zwei Wohnungen. Satteldach mit 30° Dachneigung. Kniestock 1,75 m.
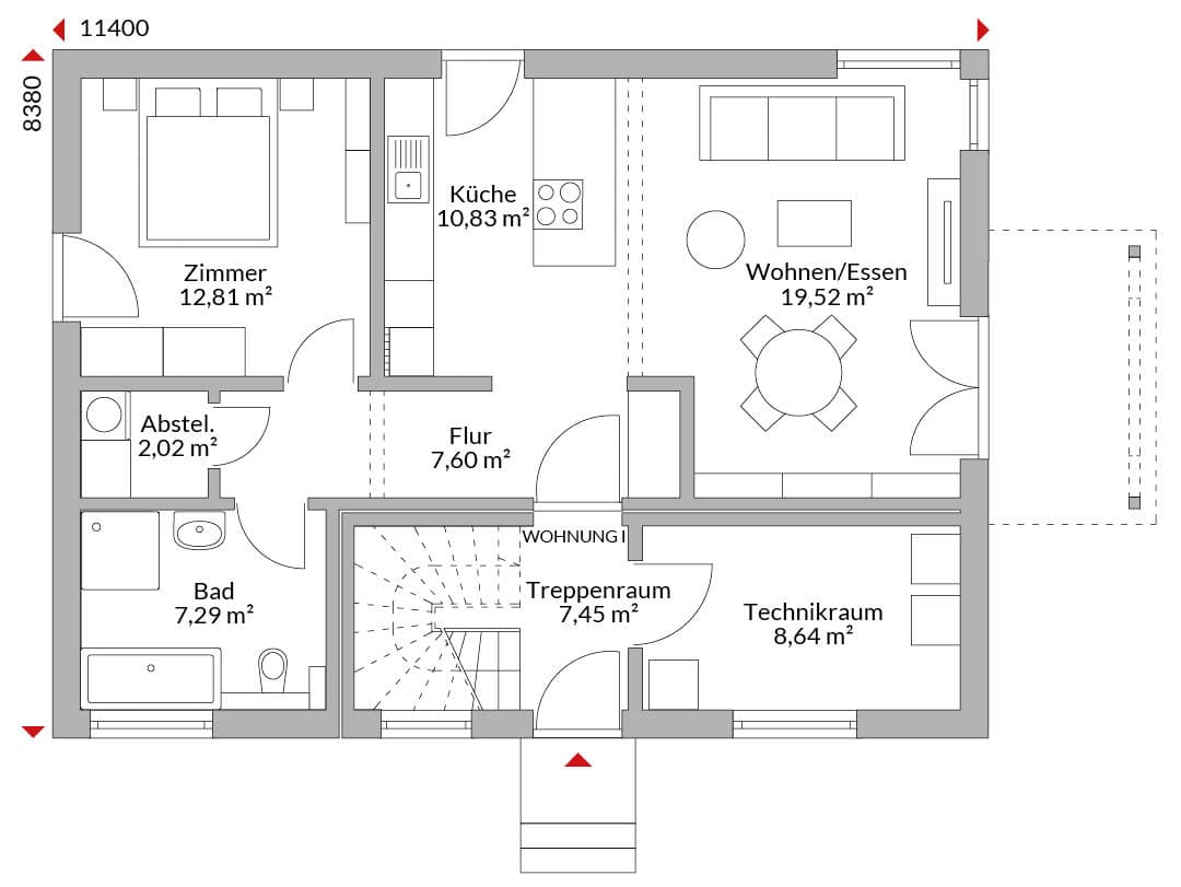
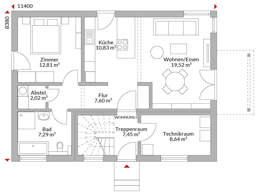
Wohnung 1 im Erdgeschoss: Wohnen/ Essen, offene Küche, Flur, Wannenbad, Schlafzimmer.
Gemeinsamer Zugang zu den Wohnungen, Treppenhaus und Technikraum für Wohnung 1+2 in gemeinsamer Diele.
Wohnung 2 im Obergeschoss: Wohnen/ Essen, Küche, Flur, Wannenbad, 2 Schlafzimmer, Abstellraum, Balkon.
*Abbildungen zeigen teilweise individuelle Zusatzausstattung.
Hausstandard Today
Vollständige Baubeschreibung und Materialspezifikation.

Grundrisse
Kompletter Plan aller Etagen mit Fläche

Sogar fremde Leute haben uns im Ort angesprochen, wie schön unser Haus ist. Klar macht einen das stolz.