Eineinhalbgeschossiges Haus mit zwei Wohnungen. Satteldach mit 30° Dachneigung. Kniestock 1,75 m, vorgezogener Eckerker mit Satteldachgaube.
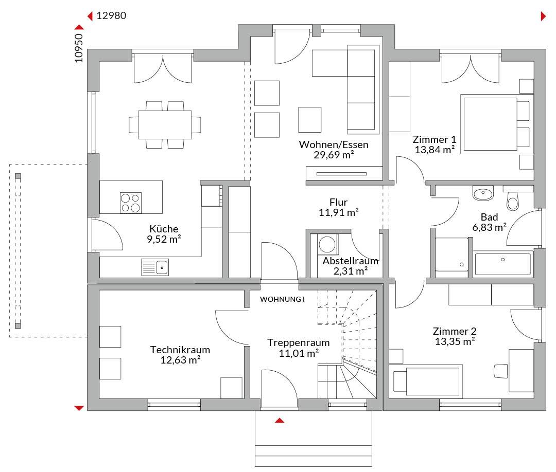
Wohnung 1 im Erdgeschoss: Wohnen/ Essen, offene Küche, Flur, HWR, Wannenbad, 2 Schlafzimmer, überdachte Terrasse.
Gemeinsamer Zugang zu den Wohnungen, Treppenhaus und Technikraum für Wohnung 1+2 in gemeinsamer Diele.
Wohnung 2 im Obergeschoss: Wohnen/ Essen, offene Küche, Abstellraum, Flur/ Diele, Wannenbad, Gäste-WC, 3 Schlafzimmer, Balkon.
*Abbildungen zeigen teilweise individuelle Zusatzausstattung.
Hausstandard Today
Vollständige Baubeschreibung und Materialspezifikation.

Grundrisse
Kompletter Plan aller Etagen mit Fläche

Sogar fremde Leute haben uns im Ort angesprochen, wie schön unser Haus ist. Klar macht einen das stolz.