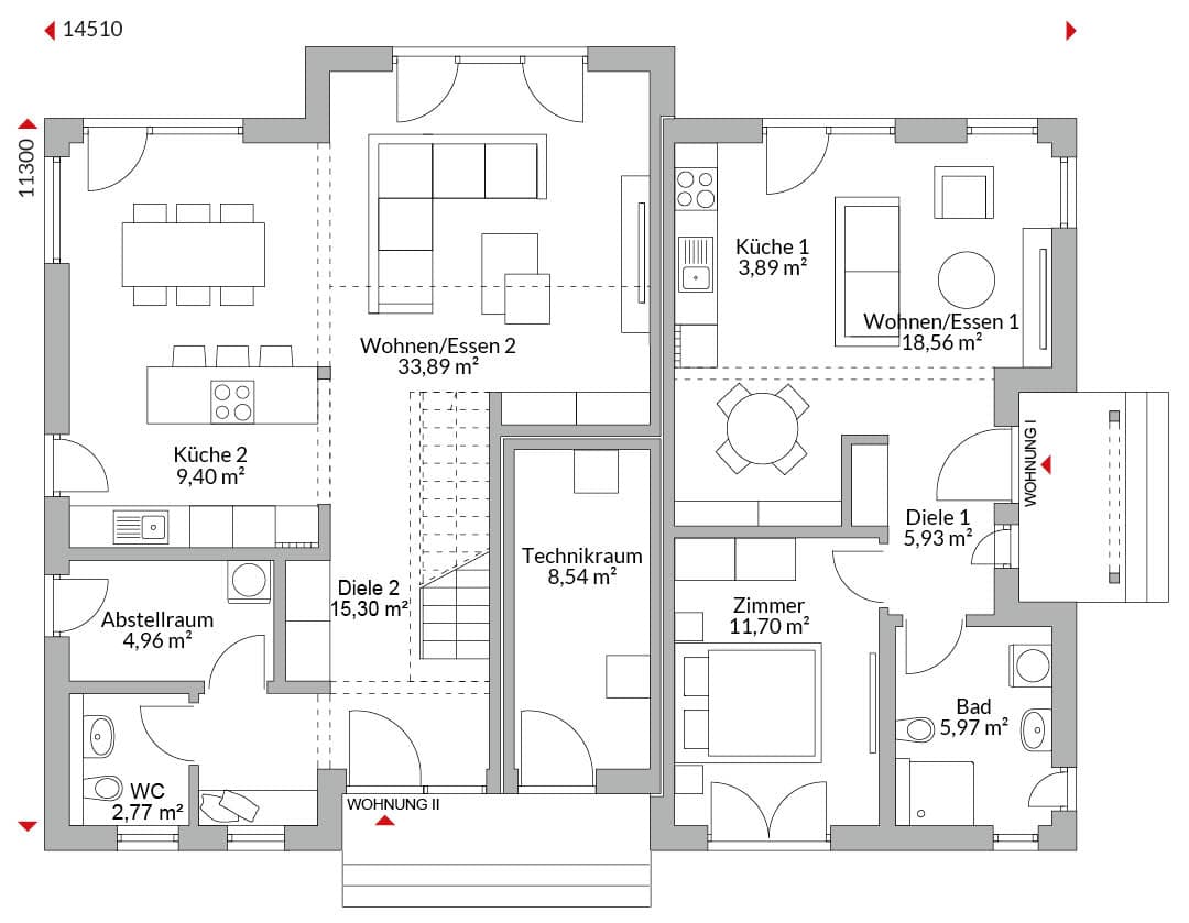
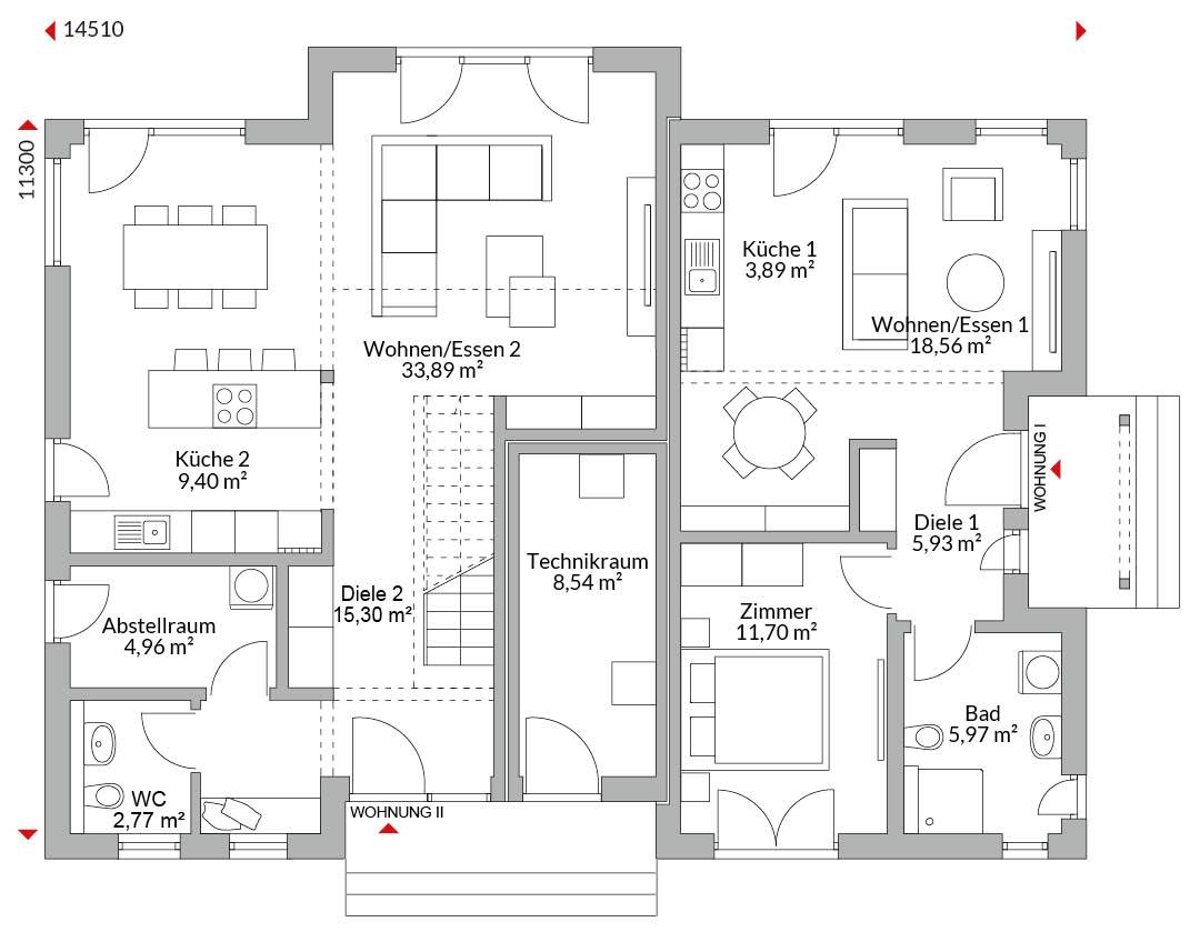
Zweigeschossiges Stadthaus mit zwei Wohnungen. Separate Zugänge zu den Wohnungen. Externer Zugang zum gemeinsamen Technikraum. Walmdach mit 20° Dachneigung.
Wohnung 1 über zwei Etagen: Erdgeschoss mit schönem Luftraum: Wohnen/ Essen/ offene Küche, Diele, Gäste-WC, Abstellraum, Treppe nach oben, Obergeschoss: 4 Schlafzimmer, 1 Wannenbad, Flur, Garderobe.
Wohnung 2 ebenerdig: Wohnen/ Essen, offene Küche, Duschbad mit Waschmaschinenstellplatz, Diele, 1 Schlafzimmer.
*Abbildungen zeigen teilweise individuelle Zusatzausstattung.
Hausstandard Today
Vollständige Baubeschreibung und Materialspezifikation.

Grundrisse
Kompletter Plan aller Etagen mit Fläche

Sogar fremde Leute haben uns im Ort angesprochen, wie schön unser Haus ist. Klar macht einen das stolz.