Bei diesem Walmdachhaus thront ein großer Balkon auf dem vorgesetzten Modul, von dem sich das Treiben vor dem Haus beobachten lässt. Für Familien wie Paare ist die Stadtvilla gleichermaßen geeignet. Ausgestattet mit drei Schlafzimmern und zwei Duschbädern im Obergeschoss sowie viel Platz zum Kochen, Essen und Relaxen im Parterre ist sie ein komfortables Zuhause für Menschen, die modernes Design lieben.
*Abbildungen zeigen teilweise individuelle Zusatzausstattung.
Hausstandard NEXT
Vollständige Baubeschreibung und Materialspezifikation.

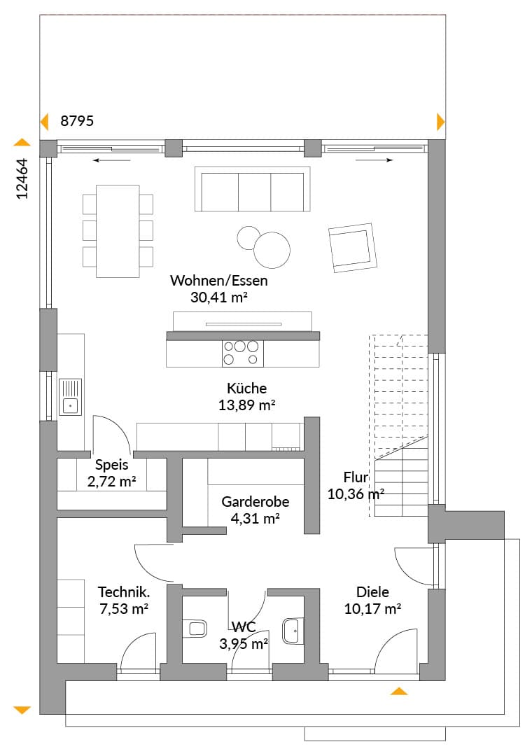
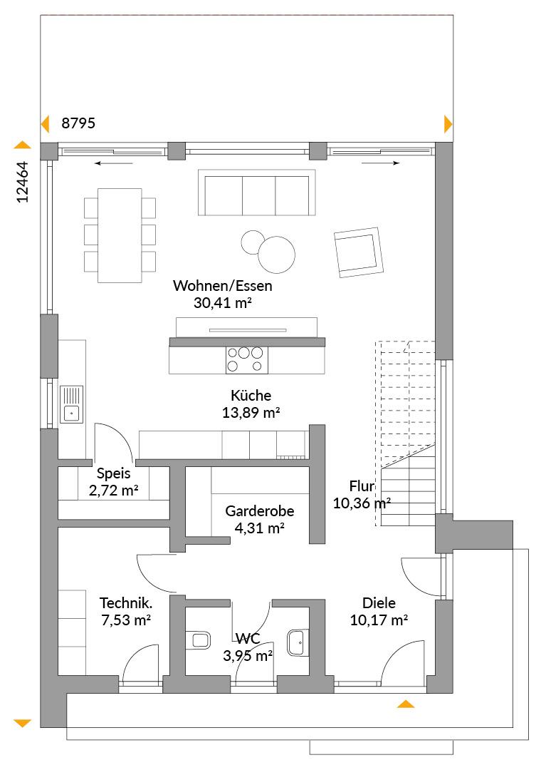
Grundrisse
Kompletter Plan aller Etagen mit Fläche
Das innovative Danwood-Modulbauprogramm bietet smarte schlüsselfertige Modulhäuser in moderner Architektur mit viel Glas, die komplett bis ins Detail im Werk vorgefertigt werden. Sie punkten mit kürzerer Lieferzeit und einer Aufbauzeit von drei Wochen. Ihr Alles-Inklusive-Konzept umfasst modernste Haustechnik, höchste Energieeffizienz und ausgesuchtes Innendesign.

Sogar fremde Leute haben uns im Ort angesprochen, wie schön unser Haus ist. Klar macht einen das stolz.