Zweigeschossiges Stadthaus mit zwei Wohnungen. Zugang zu den Wohnungen und zum gemeinsamen Technikraum über gemeinsame Diele. Walmdach mit 22° Dachneigung.
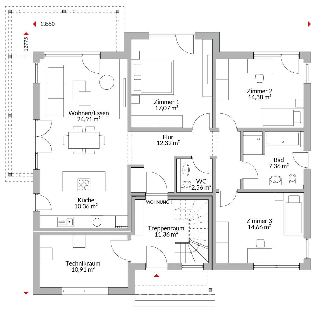
Wohnung Erdgeschoss: Wohnen/ Essen/ offene Küche, Flur, Gäste-WC, Wannenbad, 3 Schlafzimmer.
Wohnung Obergeschoss: Wohnen/ Essen, offene Küche, Wannenband, Diele, Flur, Gäste-WC, 3 Schlafzimmer, Abstellraum.
*Abbildungen zeigen teilweise individuelle Zusatzausstattung.
Hausstandard Today
Vollständige Baubeschreibung und Materialspezifikation.

Grundrisse
Kompletter Plan aller Etagen mit Fläche

Sogar fremde Leute haben uns im Ort angesprochen, wie schön unser Haus ist. Klar macht einen das stolz.