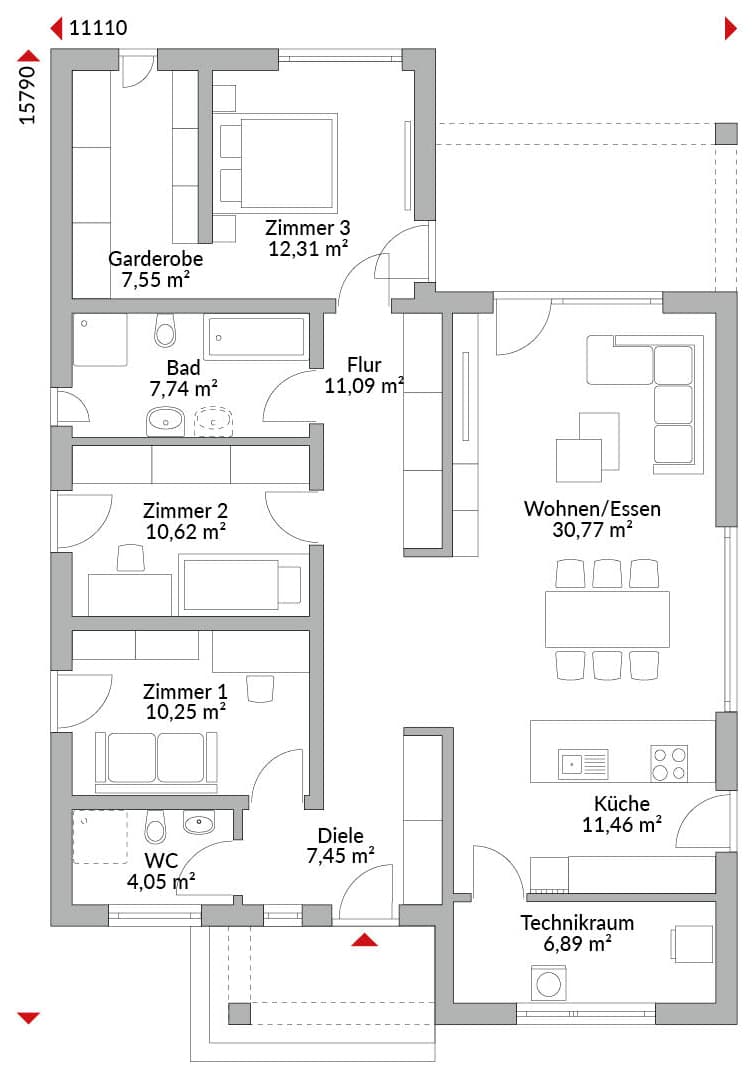
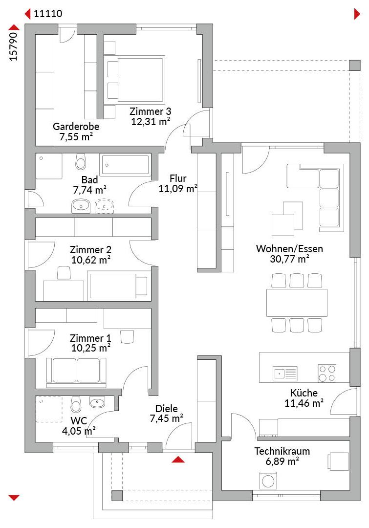
Winkelbungalow mit vier Zimmern, Ankleide, offener Küche, Bad, Gäste-WC (Duschbad möglich), Technikraum, Flur und Diele. Walmdach mit 25° Dachneigung inkl. Haustür-und Terrassenüberdachung.
*Abbildungen zeigen teilweise individuelle Zusatzausstattung.
Hausstandard Today
Vollständige Baubeschreibung und Materialspezifikation.

Grundrisse
Kompletter Plan aller Etagen mit Fläche






Sogar fremde Leute haben uns im Ort angesprochen, wie schön unser Haus ist. Klar macht einen das stolz.