Ein Modulbungalow mit zwei Winkeln, zwei Schlafzimmern und einem großzügigen Koch-, Ess- und Wohnbereich lädt zum entspannten Wohnen auf kleinem Raum ein. Knapp 50 Quadratmeter für einen Single-Haushalt, der hier sogar Besuch empfangen oder sich sein Arbeits- oder Hobbyzimmer einrichten kann, sind ein luxuriöses Angebot. Als Weekend-Oase ist dieses Kleinhaus ebenfalls hervorragend geeignet – sogar für eine kleine Familie.
Hausstandard NEXT Easy
Vollständige Baubeschreibung und Materialspezifikation.

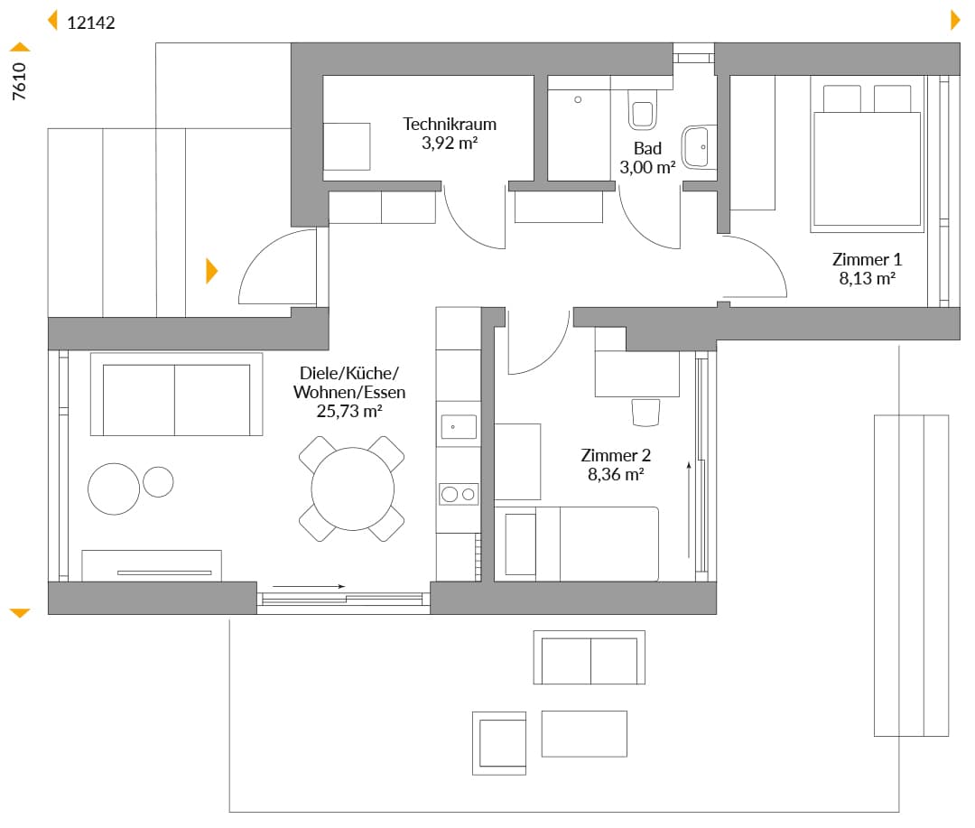
Grundrisse
Kompletter Plan aller Etagen mit Fläche






Sogar fremde Leute haben uns im Ort angesprochen, wie schön unser Haus ist. Klar macht einen das stolz.