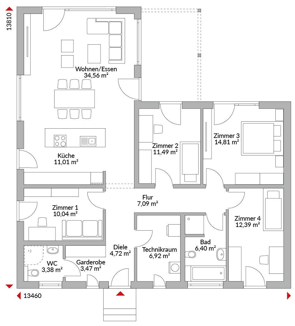
Winkelbungalow mit 5 Zimmern, offener Küche, Bad, Gäste-WC (Duschbad möglich), Diele/Garderobe und Technikraum. Walmdach mit 25° Dachneigung unkl. Terrassenüberdachung.
*Abbildungen zeigen teilweise individuelle Zusatzausstattung.
Hausstandard Today
Vollständige Baubeschreibung und Materialspezifikation.

Grundrisse
Kompletter Plan aller Etagen mit Fläche






Sogar fremde Leute haben uns im Ort angesprochen, wie schön unser Haus ist. Klar macht einen das stolz.