Minimalistische Eleganz
Das Paradies auf einer Ebene: kompakt und großzügig, transparent und privat, traditionell und modern. Und auf jeden Fall ein Hingucker.
*Abbildungen zeigen teilweise individuelle Zusatzausstattung.
Hausstandard Vision
Vollständige Baubeschreibung und Materialspezifikation.

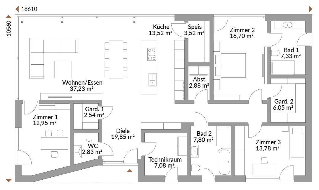
Grundrisse
Kompletter Plan aller Etagen mit Fläche






Sogar fremde Leute haben uns im Ort angesprochen, wie schön unser Haus ist. Klar macht einen das stolz.