Lichtdurchflutet und naturnah
Vom Bett aus die Sterne betrachten, am Frühstückstresen der Morgensonne entgegenlächeln und am Esstisch den uneingeschränkten Blick in die umgebende Natur genießen.
Viele gläserne Wände schaffen dieses naturnahe Wohngefühl. Zudem haben Licht und Sonne Zutritt von allen Seiten und zaubern helle Räume mit heiterer Stimmung.
Das offene Wohnkonzept im Erdgeschoss, die Stauraumangebote in Diele und Ankleide, die grazile gerade Treppe und der helle Luftraum erzeugen mit dem schon erwähnten Tagelichtkonzept ein grandioses Ambiente.
Drei Bäder flankieren drei bis vier Schlafzimmer. Das sind beste Voraussetzungen für ein entspanntes Familienleben oder komfortable Gastfreundschaft. Die traumhafte Küche und der exponierte Essplatz machen Kochen zum Vergnügen, den Alltag außergewöhnlich und die Bewirtung von Gästen zum Event.
Edle Hölzer und exklusive Fliesen schaffen luxuriöses Flair im Haus und unterstreichen den exklusiven Geschmack, den Sie mit dieser Hauswahl zeigen und den bereits die schöne Außenansicht mit grauen Fensterrahmen und großformatigen Fassadenplatten signalisiert.
Harmonisch integriert, ist auch der über die Eingangsüberdachung ans Haus angebundene Carport nicht nur praktisch, sondern ein schöner Blickfang.
*Abbildungen zeigen teilweise individuelle Zusatzausstattung.
Hausstandard Vision
Vollständige Baubeschreibung und Materialspezifikation.

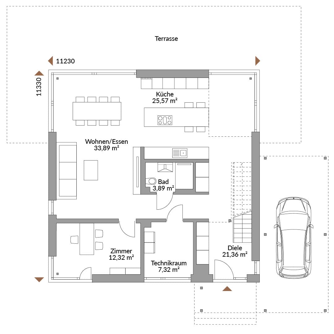
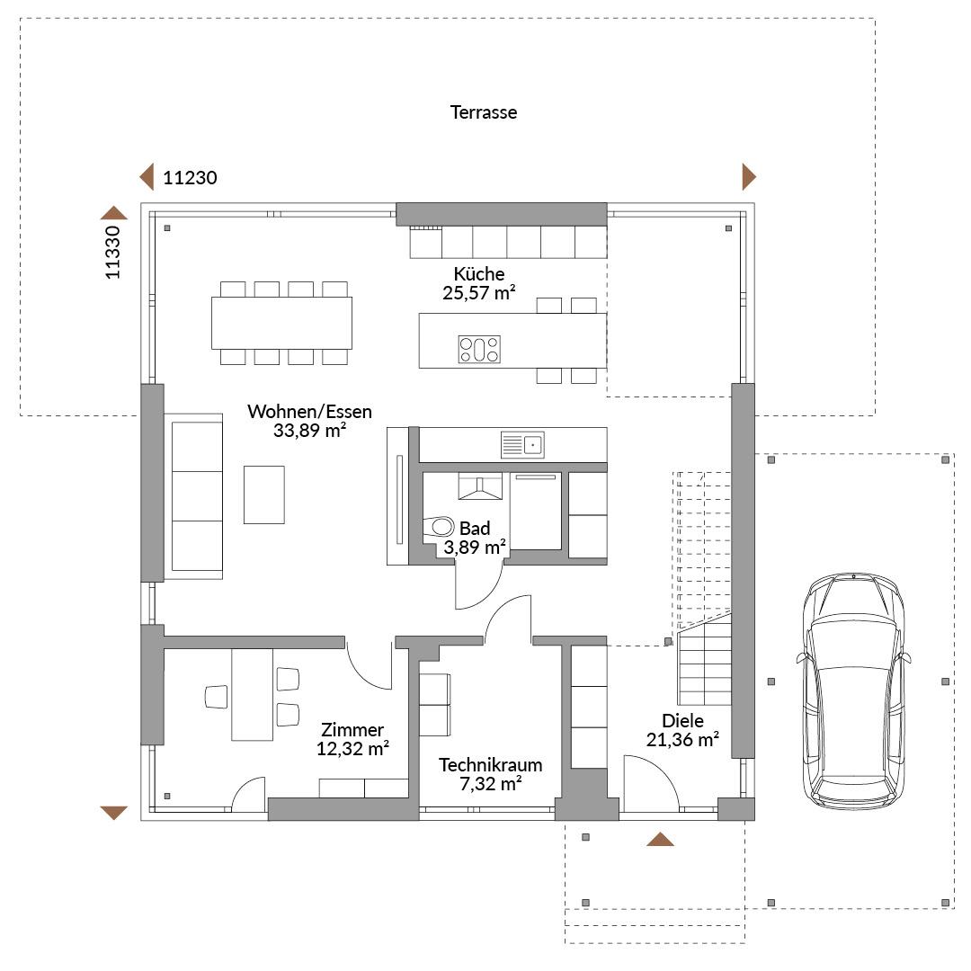
Grundrisse
Kompletter Plan aller Etagen mit Fläche

Sogar fremde Leute haben uns im Ort angesprochen, wie schön unser Haus ist. Klar macht einen das stolz.